На информационном ресурсе применяются cookie-файлы. Оставаясь на сайте, вы подтверждаете свое согласие на их использование.
Кухня под заказ (часть 5)
127102
1000
Где ванильные фасады - вытяжка высоковата, однако. Не засосет.Высоковато, но заказчики так решили из-за внешнего вида. Желание закзчика-закон!

...чудовищная вытяжка на первом фото - уж вовсе анахронизм, как ни крути, но любой человек, ростом выше 170ти, разобьет голову при попытке заглянуть в кастрюлю...В том то и дело, что в семье у заказчика все имеют рост 1,50 и не захотели ставить вытяжку по стандарту!
masterlook
activist
Добрый вечер, джентльмены.
Раз нашел такую тему, задам интересующие вопросы.
Есть у кого опыт размещения кухни в пятиэтажках (ленинградка), три квартиры на этаже.
Купили "Трешку" а кухня по-моему менше чем в "двушке" :-(, или планировка такая.
Хочется разместить:
-Холодильник (не встроенный)
-мойку
-варочную поверхность (2 или 4 конфорки - пока решаем)
-микроволновку
-Духовой шкаф
-стиралку
По духовке и варочной, вопрос открыт, может просто печь взять 2 в одном
Супруга шепчет про телевизор :-), но я боюсь и вышеперечисленное не влезет :-(.
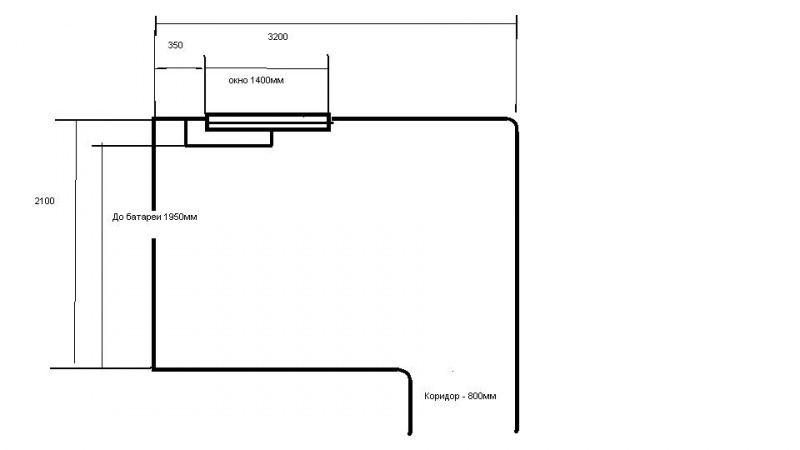
эскиз с размерами набросал, прикрепляю. Углы под радиус - это не шутка, это от предыдущих хозяев .
Раз нашел такую тему, задам интересующие вопросы.
Есть у кого опыт размещения кухни в пятиэтажках (ленинградка), три квартиры на этаже.
Купили "Трешку" а кухня по-моему менше чем в "двушке" :-(, или планировка такая.
Хочется разместить:
-Холодильник (не встроенный)
-мойку
-варочную поверхность (2 или 4 конфорки - пока решаем)
-микроволновку
-Духовой шкаф
-стиралку
По духовке и варочной, вопрос открыт, может просто печь взять 2 в одном
Супруга шепчет про телевизор :-), но я боюсь и вышеперечисленное не влезет :-(.
эскиз с размерами набросал, прикрепляю. Углы под радиус - это не шутка, это от предыдущих хозяев .
wox
wox
холодильник, варочная, духовой, мойка - это 600х4. стиралка 650-700. итого примрено 3100 по нижней базе. можно на плане выложить 5 квадратиков 600х600 и играться до посинения. к тому-же. не стоит еще забывать о кассетнице, в которой ящик под ложки-вилки нужно разместить. если мойка будет в углу - то нужно считать не 600х600, а как минимум 1000х600...
при таком наборе на этой кухне впору пробивать окно раздачи в комнату
при таком наборе на этой кухне впору пробивать окно раздачи в комнату
Ну что вы оправдываетесь? Хоть какой рост, всеравно головой в нее биться будешь при любом раскладе. Стекло всегда будет в жиру и тд. От пользования такой кухней будет как говорится - нет слов, одни эмоции! И вам походу всеравно как человеку с ней жить и мучаться. Вам лишь бы сделать, получить деньги и забыть? А внятно обьяснить похоже даже не пытались.
sheriff
experienced
Вы как-то слишком много хотите уместить на 5 кв.метров. Наверное еще и стол со стульями надо куда-то поставить. Холодильник в коридор, стиралку в ванную... Прямую маленькую двухметровую
dimitry11
experienced
Прямо как у нас. Только у нас холодильник и морозилка стоит, и вместо духового шкафа с варочной - отдельно стоящая печка. И да, места для обеденного стола естественно не остается. Если без стола вариант устроит. могу выложить схемку.
Сейчас читают
Такси Фэмили
8094
69
Онищенко предложил ограничить право родителей на отказ от вакцинации
125893
520
Белый дозор
12706
202
kiroF
experienced
жил когда то в такой трешке.
стиралку в итоге в ванну поставил с горизонтальной загрузкой, и вместо самой ванны душевой уголок глубокий чтоб ребенка купать
что б все рационально разместить и все было на своих местах запилил в кухню микроволновку с функцией духовки, впрочем как духовка она вообще не то пальто
сначала тоже хотел стиралку воткнуть на кухню, но полезных шкапчиков мало останется
как вариант если на фотку смотреть то стиралку поставить вместо выдвижных ящиков, а ящики справа от холодильника, но мало место останится подпосудусковородкикастрюли
стиралку в итоге в ванну поставил с горизонтальной загрузкой, и вместо самой ванны душевой уголок глубокий чтоб ребенка купать
что б все рационально разместить и все было на своих местах запилил в кухню микроволновку с функцией духовки, впрочем как духовка она вообще не то пальто
сначала тоже хотел стиралку воткнуть на кухню, но полезных шкапчиков мало останется
как вариант если на фотку смотреть то стиралку поставить вместо выдвижных ящиков, а ящики справа от холодильника, но мало место останится подпосудусковородкикастрюли
кстати стол туда влазит маленький, но все же
в таком варианте изобразил
если все в куче - считаю эт максимально что можно было выжать из 6кв
в таком варианте изобразил
если все в куче - считаю эт максимально что можно было выжать из 6кв
нашел все же
такая же кухня точно, даж фасады теже, когда то в тренде были
только посудомоика стоит слева от духовки, вот в место нее стиралку
такая же кухня точно, даж фасады теже, когда то в тренде были
только посудомоика стоит слева от духовки, вот в место нее стиралку
masterlook
activist
Спасибо за фотки, добрый человек.
Сегодня вечером будем обсуждать.
Стол большой ненужен.
Холодильник немного окно перекрывает, ну да бог с ним.
Мне понравилось.
Сегодня вечером будем обсуждать.
Стол большой ненужен.
Холодильник немного окно перекрывает, ну да бог с ним.
Мне понравилось.
masterlook
activist
:-)
Понимаю, что нельзя впихнуть невпихуемое.
Мойка - это раковина (не посудомоечная машина)
Но сейчас все это стоит,
Холодильник в правом углу правда, стиралка с лева, и дальше углом гарнитур, могу на плане нарисовать, могу фотки выложить.
Про окно в комнату - это тема :-)
Но вот сын вырастет, или дочь замуж выйдет и переедет, задумаемся :-)
Понимаю, что нельзя впихнуть невпихуемое.
Мойка - это раковина (не посудомоечная машина)
Но сейчас все это стоит,
Холодильник в правом углу правда, стиралка с лева, и дальше углом гарнитур, могу на плане нарисовать, могу фотки выложить.
Про окно в комнату - это тема :-)
Но вот сын вырастет, или дочь замуж выйдет и переедет, задумаемся :-)
сначала тоже хотел стиралку воткнуть на кухню, но полезных шкапчиков мало останетсяесли верхние хкафы делать повыше (сантиметров по 90), то вместо двух полок в них три можно поместить, а это всего-то в ПОЛТОРА раза увеличивает их вместимость.
masterlook
activist
Если не сложно, выложите схему с планировкой.
лично я категорически не люблю высокие верхние шкафы, так как в маленьком помещении они "давят"
нужно что бы верхнии стык потолка и стены было глазом видно, в маленьком помещении это очень важно
имхо
нужно что бы верхнии стык потолка и стены было глазом видно, в маленьком помещении это очень важно
имхо
masterlook
activist
Да их сколько не делай (шкафчиков), все равно мало будет :-)
kiroF
experienced
:-)если уж на то пошло в такой планировке, перегородку сносят с комнатой которая граничит и таким образом получается двух комнатная крвартира))
Про окно в комнату - это тема :-)
Но вот сын вырастет, или дочь замуж выйдет и переедет, задумаемся :-)
и кухня гостиная
Я давала ответ другому собеседнику, а не собиралась ни в коем разе оправдываться перед вами
Совершенно не понимаю вашу агрессию и неоправданные обвинения
Зачем портить настроение себе и окружающим
Не всегда заказчики делают по совету и правилам, у них есть свои определенные желания, из-за которых они в общем-то и идут заказывать кухню на заказ, а не покупают готовую.
Клиенты кухней своей очень довольны и пользуется ей уже больше 2-х лет. Сейчас они являются нашими постоянными клиентами.
Для нас это главный критерий, поэтому смысла вступать с вами в перепалку не вижу)
Совершенно не понимаю вашу агрессию и неоправданные обвинения
Зачем портить настроение себе и окружающим
Не всегда заказчики делают по совету и правилам, у них есть свои определенные желания, из-за которых они в общем-то и идут заказывать кухню на заказ, а не покупают готовую.
Клиенты кухней своей очень довольны и пользуется ей уже больше 2-х лет. Сейчас они являются нашими постоянными клиентами.
Для нас это главный критерий, поэтому смысла вступать с вами в перепалку не вижу)
Natasha54
junior
Добрый день.
Прорисовала основные схематичные варианты для вашей кухни, надеюсь поможет вам при планировке
Прорисовала основные схематичные варианты для вашей кухни, надеюсь поможет вам при планировке
Natasha54
junior
Очень удачный вариант, по моему мнению, на фото предложил kiroF
Natasha54
junior
Можно рассмотреть вообще "экзотичные" варианты)
Критики, я думаю, будет много, так как очень большие сложности при воплощении таких идей (перенос слива и вентиляции батареи). Но проекты имеют места быть, поэтому выкладываю. Может, в них для себя найдете что-то интересное))
Критики, я думаю, будет много, так как очень большие сложности при воплощении таких идей (перенос слива и вентиляции батареи). Но проекты имеют места быть, поэтому выкладываю. Может, в них для себя найдете что-то интересное))
если под окно делать, окно низко в этих квартирах, колхоз получится
masterlook
activist
Да, окно низкое, хотя обеденный стол точно под подоконник входит.
Но готовить (что либо резать) - неудобно
Но готовить (что либо резать) - неудобно
masterlook
activist
Спасибо за варианты, будем обсуждать,
Вариант под окно, нам уже предлагали, правда только один.
А тут выбор побогаче :-)
звездочка - это снег холодильника?
Вариант под окно, нам уже предлагали, правда только один.
А тут выбор побогаче :-)
звездочка - это снег холодильника?
wox
wox
мойка да, не посудомоечная машина, в угловом варианте места занимает гораздо больше.
Я никого не хотел обидеть, но вас смотрю мои замечания как-то сильно задели. Научитесь нормально относиться к критике и оправданным замечаниям. А я всего лишь констатировал факт того бывают кухни продуманные, а бывают ....
такая же кухня точно, даж фасады теже, когда то в тренде былиВот поддерживаю! Считаю что хороший вариант. Все рационально.
только посудомоика стоит слева от духовки, вот в место нее стиралку
sheriff
experienced
Вот по сути тоже самое что и KiroF вам предложил. Наверное самое оптимальное решение в столько малую площадь.
Осталось у царя поинтересоваться за сколько сие чудо холопы изготовят
вангую хочется в тридцатьпять уложится)
вангую хочется в тридцатьпять уложится)
правильно вангуешь. старыми да - штука гринов, а нынешними - мало у кого свои хотелки сосчитать выходит, мешают приступы амнезии, глухоты и слепоты...
Да, как то последнее время все так и происходит 

masterlook
activist
Спасибо за такие эскизы!!!
Штука гринов - это про меня и такую кухню?
Это вы зря.
Хотя штука гринов меньше чем штука евров, и это радует
Цену нужно обсуждать индивидуально, в зависимости от хотелок.
Для меня пока темный лес -фасады/столешница (или как правильно?)/фурнитура (доводчики, и т.д.)/
Всё это будет обсуждаться при заказе, все + и -
Штука гринов - это про меня и такую кухню?

Это вы зря.
Хотя штука гринов меньше чем штука евров, и это радует

Цену нужно обсуждать индивидуально, в зависимости от хотелок.
Для меня пока темный лес -фасады/столешница (или как правильно?)/фурнитура (доводчики, и т.д.)/
Всё это будет обсуждаться при заказе, все + и -
лично я категорически не люблю высокие верхние шкафы, так как в маленьком помещении они "давят"у меня в старой хрущевке под потолок были шкафы, а там вообще 5,1 площадь кухни. И ничего не давило.
нужно что бы верхнии стык потолка и стены было глазом видно, в маленьком помещении это очень важно
имхо
Правильно подобранный цвет важнее, чем видимый стык
до хоть за подбирайся до посинения) было 5кв по потолку стало 4
но ты изначально был готов так сделать так, потому смысл вести дискуссию
к тому же все зависит от количества и особенности житья членов семьи
мне моя тоже поначалу накидывала давай под потолок делать
ага, говорю что ты там будешь хранить
пришлось по вникать) оказалось всякая хрень подарочная и не подарочная по два комплекта, чем не пользуется, стоит пылится на верхних полках
а под габарит кухонный над коридорчиком нишу сделал, впрочем туннель двухметровый тоже не ахти, да и темный, светлый надо было делать
НО площадь потолка на кухне сохранил и в этом и была задача и при этом все на своих местах
короч на вкус и цвет нет друзей и все от особенностей помещения зависит
аллилуйя)
но ты изначально был готов так сделать так, потому смысл вести дискуссию
к тому же все зависит от количества и особенности житья членов семьи
мне моя тоже поначалу накидывала давай под потолок делать
ага, говорю что ты там будешь хранить
пришлось по вникать) оказалось всякая хрень подарочная и не подарочная по два комплекта, чем не пользуется, стоит пылится на верхних полках
а под габарит кухонный над коридорчиком нишу сделал, впрочем туннель двухметровый тоже не ахти, да и темный, светлый надо было делать
НО площадь потолка на кухне сохранил и в этом и была задача и при этом все на своих местах
короч на вкус и цвет нет друзей и все от особенностей помещения зависит
аллилуйя)
sheriff
experienced
Да это же не я про штуку гринов сказал. Хотя за нынешний курс, за 80 тысяч можно изготовить. А вот за 35.000 как раньше.... Уже нельзя. Об этом тут речь и вели. Если нужен исполнитель, можете мне в личку написать, обсудим. Можете другого любого выбрать.
masterlook
activist
Спасибо за предложение.
Мы пока на стадии - всё ободрали
(уже 2 месяца)
Я понимаю, варочную поверхность и духовку надо заранее покупать,
Розетки распланировать и перенести - это само собой.
Натяжной потолок - тоже перед монтажом кухни нужно сделать.
Мы пока на стадии - всё ободрали
(уже 2 месяца)Я понимаю, варочную поверхность и духовку надо заранее покупать,
Розетки распланировать и перенести - это само собой.
Натяжной потолок - тоже перед монтажом кухни нужно сделать.
wox
wox
варочную и духовой можно покупать не заранее, а к моменту установки, хоть за день...
да и потолок натянуть кухня вовсе не мешает
да и потолок натянуть кухня вовсе не мешает
Дикий турист
veteran
Нужно изготовить кухню (и далее) под заказ, бывают тут мастера?
В данной квартире, требуется недорогой вариант, без изысков и австрийской фурнитуры.
Предложения в личку.
В данной квартире, требуется недорогой вариант, без изысков и австрийской фурнитуры.
Предложения в личку.
masterlook
activist
благодарю, будем расставлять приоритеты 

wox
wox
из правил арифметики: от перестановки слагаемых сумма не меняется 

sheriff
experienced
чайники, мясорубки, миксеры и пр. тостеры - на батарейках.
а что, красиво жить не запретишь
а что, красиво жить не запретишь

...все розетки выдвижные из столешницы
Александр.....
guru
Интересна сама планировка со смещённым в угол окном (нестандартно). А вот с нижними тумбами хозяева переборщили. Чем полезным такой объём заполнить при двух-четырех проживающих? Правильно - бесполезным.
Александр.....
guru
Интересное решение с подвесной столешницей.
Как понимаю, лет пять-шесть с тех пор прошло, не отвалилось?
Как понимаю, лет пять-шесть с тех пор прошло, не отвалилось?
kiroF
experienced
Внутри трубы на тросе же весит, а не на самой трубе)
dimmkk222
member
прочитал в интернете про столешницы duropal , кто знает,есть такие в Новосибирске?
dimitry11
experienced
Сори, немножко не до форума было.
Вот так у нас. Жене нравится. Рядом с мойкой - посудомойка. Высота окна позволила уложить столешницу под подоконник. Ширина столешницы где окно - 500 мм.
Культа еды у нас нет, можем и на кухне поесть с той стороны где посудомойка, можем в зале за сервировочным столиком.
Вот так у нас. Жене нравится. Рядом с мойкой - посудомойка. Высота окна позволила уложить столешницу под подоконник. Ширина столешницы где окно - 500 мм.
Культа еды у нас нет, можем и на кухне поесть с той стороны где посудомойка, можем в зале за сервировочным столиком.
ТОП 5
3
