На информационном ресурсе применяются cookie-файлы. Оставаясь на сайте, вы подтверждаете свое согласие на их использование.
Кровать в спальню на заказ
21243
87
Rustymusty
v.i.p.
Металлическую мебель категорически не понимаю. Это же не офис.
Тут об деревянную с закругленными углами и то иногда бьешься. Металл же - вообще ужас, холодно, жестко, неудобно.
ИМХО, конечно же.
Тут об деревянную с закругленными углами и то иногда бьешься. Металл же - вообще ужас, холодно, жестко, неудобно.
ИМХО, конечно же.
ммммммм, клева!!! дядя Вася, можно услышать ваше профессиональное мнение о конструктиве. о долговечности представленного образца?У нас такая кровать, впрочем и остальная мебель тоже...1,5 года эксплуатируем-нормально. Делалось не на заказ покупали оригинал, кстати привезли мы это дело ажжжж из удмуртии, а тут про кузню переживают
p.S. жена тут поискала в сети фоты разные. вот выкладываю то, что в принципе мы бы хотели. Желательно, услышать ориентировочный ценник, если попробовать создать подобную кровать на заказ.

В продолжение темы.
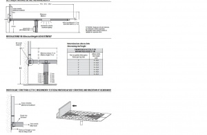
Хотелось бы изготовить кровать, спальное место 160*200.
<ссылка на ресурс удалена>
Материал: мебельный щит 40 мм.
по длине, см. 208 (+8)
по ширине, см. 170 (+10)
высота от пола до спального места*, см. 43 (при толщине матраса 20 см)
высота от пола до начала боковых царг, см. 16
Верхняя спинка, см. 78
Нижняя спинка, см. 40
Интересует материал или береза, или сосна, или бук.
(хотя сосна сказали совсем негодится :()
Хотелось бы изготовить кровать, спальное место 160*200.
<ссылка на ресурс удалена>
Материал: мебельный щит 40 мм.
по длине, см. 208 (+8)
по ширине, см. 170 (+10)
высота от пола до спального места*, см. 43 (при толщине матраса 20 см)
высота от пола до начала боковых царг, см. 16
Верхняя спинка, см. 78
Нижняя спинка, см. 40
Интересует материал или береза, или сосна, или бук.
(хотя сосна сказали совсем негодится :()
ТанцующаяСеледка
member
А я правильно понимаю, можно же не целиком кованую кровать сделать, а только две спинки?
При том, что каркас и ножки будут из дерева.
При том, что каркас и ножки будут из дерева.
Подскажите где можно купить крепежки для ламелей на ортопедическое основание? Уже вроде все что можно обзвонил и нигде нету(
Хочу заказать кровать из хорошего дерева и с хорошим качеством. Кто возьмется?
Сейчас читают
Минобороны обезглавили ... (часть 2)
19207
73
Мир изменился! (часть 3)
102850
1001
Рискованная тема - антисемитизм
400564
1828
Serzhantov
junior
Здесь большой выбор кроватей из дерева,любые размеры "Саан-Дизайн"
Если нет каких-то конкретных требований по дизайну, попробуйте здесь посмотреть. В БМ есть их салон. Мы себе заказывали. Массив со шпоном. Ждали, правда, 1,5 мес. (об этом сразу предупреждают), но привезли в обещанный день, собрали. Пока довольны.
Художественная мастерская Стиль. Изготавливаем индивидуальные изделия из дерева с элементами ковки.Информация в 2гис,в контакте группа,в яндексе.
вещь хорошая, но, вспоминая сопромат, представляю, какая там инсталяция в стене заделана...
у меня унитаз подвесной - так там рама на квадратный метр в стену упрятана. что тут - даже боюсь представить...
у меня унитаз подвесной - так там рама на квадратный метр в стену упрятана. что тут - даже боюсь представить...
tehnolog1973
experienced
на фотографии вроде по русски видно центральный упор под кроватью)
dobermann
veteran
собственно вопрос кто может такое исполнить и в какие деньги это будет стоить?:)
RougeM
old hamster
прошу прощения, я просто не знала куда смотреть)
Я бы на такой кровати сексом поостерегся заниматься.
Если только постоянно контролировать процесс и не отползать от центра кровати.
Если только постоянно контролировать процесс и не отползать от центра кровати.
Там всё и изготовлено под "миссионерскую" позу, - где ударная нагрузка выше, там подпорку и поставили

Адория, на Кавалерийской такие кровати делает, цену не знаю.
Необходимы кровати из массива дуба, может быть бука. Спальное место, 2000х1800, и 2000х900. Основание усиленный металлокаркас с ламелями. Основные параметры 100% дерево, прочность, "нескрипучесть". кто может сделать или подсказать где взять?
Сосна, береза, как основной материал не интересуют.
Сосна, береза, как основной материал не интересуют.
Уважаемые специалисты! Кто поможет изготовить каркас кровати из дерева?
Чертеж с размерами вышлю в лс для расчета.
Размер 100*200
Чертеж с размерами вышлю в лс для расчета.
Размер 100*200
Александр.....
guru
Эскимос в теме заверяет, что может.
Деревяшкин
junior
Художественная мастерская Стиль hms-nsk.ru Изготовление мебели и элементов интерьера из дерева.
ytjyobr
veteran
с таким скудным каталогом вероятность воплощения хотелок вопрошающего близка к 0
Деревяшкин
junior
Интернет Вам в помощь Изготовим по фотографии.
Alexcrv
activist
О чем ваш пост-лишь бы что-то написать?
Я ищу конкретных специалистов, а в интернете по предлагаемому Вами запросу 99% фирмы-изготовители
Я ищу конкретных специалистов, а в интернете по предлагаемому Вами запросу 99% фирмы-изготовители
Александр.....
guru
То есть вы ищете именно частника?
Alexcrv
activist
Да! Предприятия ценник крутой наворачивают
Neporadick
junior
Посмотрите здесь и может не придется искать мастера.
Белорусская мебель на сайте novosibirsk.pinskdrev.ru
- мебель №1 в Беларуси (белорусский производитель «Пинскдрев» сумел добиться уникального результата и стать эталоном качества в стране);
- высокое качество и стиль (элегантная мебель, произведенная из древесного массива с четким соблюдением требований к качеству в изысканных и уникальных цветовых гаммах);
- цены приятные
Белорусская мебель на сайте novosibirsk.pinskdrev.ru
- мебель №1 в Беларуси (белорусский производитель «Пинскдрев» сумел добиться уникального результата и стать эталоном качества в стране);
- высокое качество и стиль (элегантная мебель, произведенная из древесного массива с четким соблюдением требований к качеству в изысканных и уникальных цветовых гаммах);
- цены приятные
Где в Новосибирске можно купить такие держатели для ламелей? Особенно было бы хорошо обнаружить их на левом берегу.
Необходимы кровати из массива дуба, может быть бука. Спальное место, 2000х1800, и 2000х900. Основание усиленный металлокаркас с ламелями. Основные параметры 100% дерево, прочность, "нескрипучесть". кто может сделать или подсказать где взять?мы покупали матрас для детской кровати и для своей 180*200 в магазине "салон студия матрасы и кроват" на красный проспект 99. Цены ниже большинства магазинных, полностью индивидуально можете собрать себе матрас, начиная от материала чехла и заканчивая толщиной слоя кокоса. Что примечательно, эта же компания изготавливает и деревянную мебель. мы кровать себе купили в ангстрем (офигенная кровать), остальное в ангстреме нам не понравилось(предлают матрасы от орматек - такой ужас...)
Сосна, береза, как основной материал не интересуют.
ТОП 5
1

