На информационном ресурсе применяются cookie-файлы. Оставаясь на сайте, вы подтверждаете свое согласие на их использование.
Вопрос архитектору - дизайнеру
467679
1000
Антон Славский
activist
С удовольствием читаю тему, нашел ответы на многие вопросы.
Недавно переехал в новую квартиру, дочке уже почти год и мы с женой стали задумываться об небольшой перепланировке гостиной. Туда бы хотелось уместить детскую зону для ребенка до пяти лет (в будущем планируем переехать), небольшую зону отдыха (с ТВ и диванчиком), рабочую зону (стол, стул комп) и вот что получилось см. ниже. В детской зоне я планирую поднять пол на 15-20 см, сделать его деревянным. но меня гложат сомнения и вопросы:
1) Какой высоты и из чего сделать перегородку между детской зоной и зоной отдыха (деревянная конструкция мимо, на ум приходят что то каменно кирпичное узкое до 200мм высотой 1200мм, армированное, а поверх деревянная или из камня столешница)?
2) Комната очень темная, строго на север выходят окна (без дополнительного освещения не обойтись -с этим понятно) правильно(логично) ли я расположил зоны есть еще варианты?
3) Поправьте если что не так цветовая гамма данной комнаты: светлые(белые, топленое молоко, сливочный) темный пол, темная стена напротив окна - ццель увеличить комнату и сделать ее более светлой?
Недавно переехал в новую квартиру, дочке уже почти год и мы с женой стали задумываться об небольшой перепланировке гостиной. Туда бы хотелось уместить детскую зону для ребенка до пяти лет (в будущем планируем переехать), небольшую зону отдыха (с ТВ и диванчиком), рабочую зону (стол, стул комп) и вот что получилось см. ниже. В детской зоне я планирую поднять пол на 15-20 см, сделать его деревянным. но меня гложат сомнения и вопросы:
1) Какой высоты и из чего сделать перегородку между детской зоной и зоной отдыха (деревянная конструкция мимо, на ум приходят что то каменно кирпичное узкое до 200мм высотой 1200мм, армированное, а поверх деревянная или из камня столешница)?
2) Комната очень темная, строго на север выходят окна (без дополнительного освещения не обойтись -с этим понятно) правильно(логично) ли я расположил зоны есть еще варианты?
3) Поправьте если что не так цветовая гамма данной комнаты: светлые(белые, топленое молоко, сливочный) темный пол, темная стена напротив окна - ццель увеличить комнату и сделать ее более светлой?
Buslaev
activist
Спасибо.
1) вполкирпича 120 мм, с армированием, со штукатуркой с двух сторон и получится 150-160 мм. Если нагрузки на столешницу планируются большие, лучше сделать ее из монолитного бетона с армированием.
2) забыли план прикрепить?
3) логично, но не переборщите с темностью стены все таки.
1) вполкирпича 120 мм, с армированием, со штукатуркой с двух сторон и получится 150-160 мм. Если нагрузки на столешницу планируются большие, лучше сделать ее из монолитного бетона с армированием.
2) забыли план прикрепить?
3) логично, но не переборщите с темностью стены все таки.
Buslaev
activist
Нормальная расстановка, имеет место быть.
Пол в спальной зоне зря решили поднять, небезопасно для ребенка спросонья.
Хотя я бы поменял спальную и гостиную зону местами (наверно, скорее интуитивно).
Пол в спальной зоне зря решили поднять, небезопасно для ребенка спросонья.
Хотя я бы поменял спальную и гостиную зону местами (наверно, скорее интуитивно).
svetlyha
activist
Я бы сделала спальню и детскую в одной комнате, а гостиную перенесла бы в комнату там где спальня
в кухне-гостиной есть ниша, изначально думали сделать там рисунок, но уже год живем и все не придумаем что же сделать. варианты то есть, но как то все не то
были мысли сделать там вообще аквариум настенный, не во весь размер ниши конечно... но много слишком с ним хлопот говорят да и когда уезжать будем, за ними следить то надо...
хочется чего то интересного...
возле ниши стоит стол обеденный, это тоже учитывать надо (в скором будущем и его заменим)...
может кто то даст дельный совет, подкинет идею....
заранее спасибо
были мысли сделать там вообще аквариум настенный, не во весь размер ниши конечно... но много слишком с ним хлопот говорят да и когда уезжать будем, за ними следить то надо...
хочется чего то интересного...
возле ниши стоит стол обеденный, это тоже учитывать надо (в скором будущем и его заменим)...
может кто то даст дельный совет, подкинет идею....
заранее спасибо
Сейчас читают
щенок Гита просит мат.помощи налечение и ищет сокуратора...
5622
73
О грядущем, о призыве...
1979
30
дикий налог на недвижимость. что делать?
4718
15
Предлагаю там какую-нибудь свастику нарисовать))))
*шутка*
А вообще лучше вам к дизайнерам-художникам обратиться - может какой пейзаж порекомендуют...
Неплохо бы какая-нибудь аллея смотрелась с деревьями, уходящими вдаль.. или может прикол в виде тоннеля и выезжающего оттуда поезда... короче, что вам лучше по душе, то и нарисуйте-наклейте
*шутка*
А вообще лучше вам к дизайнерам-художникам обратиться - может какой пейзаж порекомендуют...
Неплохо бы какая-нибудь аллея смотрелась с деревьями, уходящими вдаль.. или может прикол в виде тоннеля и выезжающего оттуда поезда... короче, что вам лучше по душе, то и нарисуйте-наклейте

обращались
вот что советуют
нравится в принципе картинка с видом с балкона, не знаю правда как по цветам: подойдет ли
вот что советуют
нравится в принципе картинка с видом с балкона, не знаю правда как по цветам: подойдет ли
Воздушно-пузырьковую панель. http://www.aquade.ru/product/Puzyrkovye_paneli_/product17.html
Как вариант или что то подобное. Ссылки результат гугла.
Как вариант или что то подобное. Ссылки результат гугла.
C балкона мне тоже нравится... нуу, из представленных)
картина из пробки будет хорошо смотреться
Фотопостер (ну или фотообои, как раньше называли) во всю нишу с реальной фотографией.
Вид на море, или живописный вид на крыши, в общем, живописный пейзаж сверху. Можно подсветку добавить.
Вид на море, или живописный вид на крыши, в общем, живописный пейзаж сверху. Можно подсветку добавить.
Добрый день. Почитала-почитала, и решилась спросить совета.
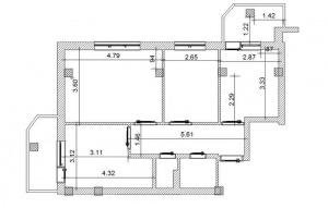
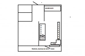
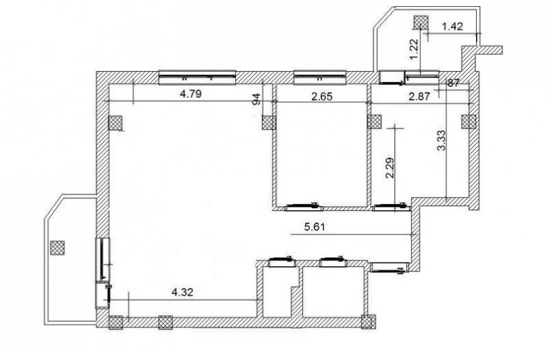
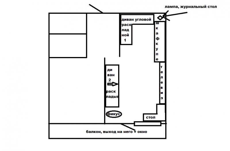
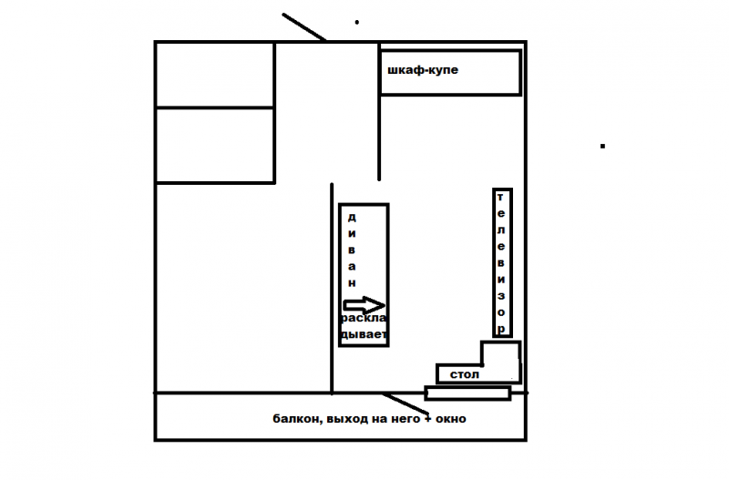
Обстраиваем комнату. Нужно "впихнуть" шкаф-купе (куда все-все вещи зайдут. Ибо будет маленький шкаф на балконе и кладовка, размером как балконный шкаф), диван двуспальный раскладной (можно-лучше два для родственников), телевизор, стол (небольшое рабочее место). Проживаем вдвоем с мужем.
Пока есть два варианта. Но много вопросов и ниодин не устраивает полностью.
В первом - много пустого места, не рационально все.
Во втором - есть вопросы по размерам, влезит ли и наоборот много всего наставлено. Не знаю, будет ли смотреться эта стенка-шкаф переплывающая в стол.
Может свежим взглядом посмотрите, да и посоветуете что-нибудь или убедите какой вариант лучше... чтобы спалось поспокойнее)
Заранее спасибо
Обстраиваем комнату. Нужно "впихнуть" шкаф-купе (куда все-все вещи зайдут. Ибо будет маленький шкаф на балконе и кладовка, размером как балконный шкаф), диван двуспальный раскладной (можно-лучше два для родственников), телевизор, стол (небольшое рабочее место). Проживаем вдвоем с мужем.
Пока есть два варианта. Но много вопросов и ниодин не устраивает полностью.
В первом - много пустого места, не рационально все.
Во втором - есть вопросы по размерам, влезит ли и наоборот много всего наставлено. Не знаю, будет ли смотреться эта стенка-шкаф переплывающая в стол.
Может свежим взглядом посмотрите, да и посоветуете что-нибудь или убедите какой вариант лучше... чтобы спалось поспокойнее)
Заранее спасибо
Точно оценить варианты по таким,
извиняюсь, каракулям и без точных размеров невозможно. Поэтому совет довольно абстрактный.
Оставьте тот вариант, где больше свободного места. Потому что у меня подозрение, что это не в нем много свободного места, а наоборот, в другом варианте будет тесно, как на мебельном складе. Либо нужны точные размеры, но это уже проектирование.
извиняюсь, каракулям и без точных размеров невозможно. Поэтому совет довольно абстрактный.Оставьте тот вариант, где больше свободного места. Потому что у меня подозрение, что это не в нем много свободного места, а наоборот, в другом варианте будет тесно, как на мебельном складе. Либо нужны точные размеры, но это уже проектирование.
Спасибо. Действительно, так очень трудно. Будем мерить-думать
Добрый вечер, уважаемые форумчане! Суть вопроса: требуется дизайнер, имеющий опыт работы с нежилыми помещениями. Есть помещение, 200 кв м, которое необходимо грамотно распланировать под детский бассейн ( от 0 до 7 лет), и придумать/продумать интересный дизайн-проект по умеренным ценам. В общем, сделать "конфетку" для детей и их родителей. Ищу человека, которому было бы интересно взяться за подобный проект. Пережив несколько ремонтов как в квартирах, так и в коммерческих объектах, пришла к выводу, что это все - таки разная специфика... Может кто - то посоветует проверенного человека? Или этот человек сам откликнется...
P.S. Модератор, пересмотрела темы через поиск - там нашла только все вопросы к дизайнерам по жилым помещениям, а тут все таки несколько другая специфика...
И тем не менее, на ваш вопрос здесь откликнутся быстрее.
P.S. Модератор, пересмотрела темы через поиск - там нашла только все вопросы к дизайнерам по жилым помещениям, а тут все таки несколько другая специфика...
И тем не менее, на ваш вопрос здесь откликнутся быстрее.
Нет никакой разницы в работе над жилыми и коммерческими помещениями. Так что поиск дизайнера под необходимую Вам задачу ничем не отличается от поиска дизайнера под любую другую. Насчет интереса -это вопрос переговоров.
Домовладелец78
junior
Добрый день!
Измучились совсем. Приобрели квартиру, дом пока строится, но сдача уже вот-вот и соответственно вопрос перепланировки/отделки встает очень даже ребром.
Вопрос вот какой. Имеем исходную планировку. Она стандартная и не совсем подходит под наши хотелки. Начали фантазировать и в итоге уперлись в один вариант. Он вроде бы и нормальный, но в то же время что-то в нем смущает. Вот и хотим спросить у специалистов, может подскажете, что и как передвинуть?
Измучились совсем. Приобрели квартиру, дом пока строится, но сдача уже вот-вот и соответственно вопрос перепланировки/отделки встает очень даже ребром.
Вопрос вот какой. Имеем исходную планировку. Она стандартная и не совсем подходит под наши хотелки. Начали фантазировать и в итоге уперлись в один вариант. Он вроде бы и нормальный, но в то же время что-то в нем смущает. Вот и хотим спросить у специалистов, может подскажете, что и как передвинуть?
Buslaev
activist
Если вариант в целом устраивает, нужно немного расширить спальню, Вы ее совсем зажали. Сдвинуть гардероб, сузив коридор до разумной ширины, чуть сдвинуть перегородку в сторону гостиной. Где будет кухонный гарнитур, я так понимаю, лучше не спрашивать 

Домовладелец78
junior
Добрый день!
В том-то и проблема, что вариант с одной стороны устраивает, а с другой не очень. Мы на нем просто зациклились. Про гарнитур, кухня, ну почти ага:) Хотя может есть какие иные варианты?
В том-то и проблема, что вариант с одной стороны устраивает, а с другой не очень. Мы на нем просто зациклились. Про гарнитур, кухня, ну почти ага:) Хотя может есть какие иные варианты?
Домовладелец78
junior
Добрый день!
Вот в том и проблема, что "не устраивает" это не совсем корректно. По планировке мы вроде как пришли к общему знаменателю:) Основная проблема - это проблема с кухней-гостиной. Как правильно провести зонирование: куда кухонный гарнитур со столом поставить, где диван с телевизором. Хотя конечно понятно, что гарнитур утаскивать от труб (ХВС, ГВС, канализация), особо-то и не утащишь. Далее, ну это может от неопытности проблема, получается, что как только заходишь в квартиру - сразу вот и диван! Но это в нашем варианте. А может это и нормально, просто сила привычки?
Ну, вот пока такие проблемы.
Вот в том и проблема, что "не устраивает" это не совсем корректно. По планировке мы вроде как пришли к общему знаменателю:) Основная проблема - это проблема с кухней-гостиной. Как правильно провести зонирование: куда кухонный гарнитур со столом поставить, где диван с телевизором. Хотя конечно понятно, что гарнитур утаскивать от труб (ХВС, ГВС, канализация), особо-то и не утащишь. Далее, ну это может от неопытности проблема, получается, что как только заходишь в квартиру - сразу вот и диван! Но это в нашем варианте. А может это и нормально, просто сила привычки?
Ну, вот пока такие проблемы.
Buslaev
activist
Самые простые решения:
- кухонный гарнитур , очевидно, нужно сделать Г- образным, Вы правы, он привязан к стене с разводкой труб; возможно, придется отодвинуть обеденный стол, но это вопрос необходимых опций (и, соответственно, размера кухонного гарнитура);
- диван можно отделить от прихожей светопрозрачной (из матового стекла, например) перегородкой для психологической изоляции гостиной от прихожей. Перегородка может быть небольшая, всего метр шириной, чтоб закрыла месторасположение дивана, когда входишь в квартиру.
- кухонный гарнитур , очевидно, нужно сделать Г- образным, Вы правы, он привязан к стене с разводкой труб; возможно, придется отодвинуть обеденный стол, но это вопрос необходимых опций (и, соответственно, размера кухонного гарнитура);
- диван можно отделить от прихожей светопрозрачной (из матового стекла, например) перегородкой для психологической изоляции гостиной от прихожей. Перегородка может быть небольшая, всего метр шириной, чтоб закрыла месторасположение дивана, когда входишь в квартиру.
Уважаемые дизайнеры. Дайте, пожалуйста, ссылочки на ХОРОШИЕ статьи посвящённые цвету в интерьере. Хочу в своей комнате использовать 3 цвета: белый, зелёный, фиолетовый. Хочу почитать теорию. Спасибо.
Видимо, я неверно сформулировала свой запрос. Мне хочется понять какие цвета в интерьере могут быть доминирующими, а какие нет? Что такое "дополняющий " цвет к основному? Как правильно выбрать цветовые акценты. Или мне не стоит этим заморачиваться и сделать всё опираясь лишь на вкус? Посоветуйте, пожалуйста.
Опирайтесь на свой вкус лучше. Жизненную среду невозможно выстроить по справочнику.
Добрый день. Хочу услышать совет по дизайну. Близится ремонт кухни. выбираю, то что к душе ляжет.
Очень нравится 1 картинка: достойно и ничего лишнего. И дновременно тянет на прованс, что-то типа 2 и 3 картинки: стильно, необычно, но с тем же кажется это будет давить, да и много элементов, боюсь не смогу закончить стиль.
Есть мысль совместить 1 интерьер и на стену около стола приклеить фотообои (картинка 4), но боюсь, что это перегрузит 1 интерьер и получится что-то в стиле: сало-мед-говно-и пчелы...
Очень нравится 1 картинка: достойно и ничего лишнего. И дновременно тянет на прованс, что-то типа 2 и 3 картинки: стильно, необычно, но с тем же кажется это будет давить, да и много элементов, боюсь не смогу закончить стиль.
Есть мысль совместить 1 интерьер и на стену около стола приклеить фотообои (картинка 4), но боюсь, что это перегрузит 1 интерьер и получится что-то в стиле: сало-мед-говно-и пчелы...
Можете попробовать как на картинке 1, только с инверсией цветов - поменять местами светлый кремовый и светлый зеленый (т.е. фасады сделать светло-зелеными (~ светло-бирюзовыми)), шторы и столешницы светло-кремовыми или белыми. Может получиться что то вроде гибрида картинок 1 и 2 . Картинка 3 годится для деревенского дома.
Насчет картины на стене надо смотреть "по месту" - можно повесить, только если по бокам от изображения будут пустые участки стены, в противном случае просто забъете пространство а-ля мебельный склад.
Насчет картины на стене надо смотреть "по месту" - можно повесить, только если по бокам от изображения будут пустые участки стены, в противном случае просто забъете пространство а-ля мебельный склад.
Если задача практическая, а не образовательная, то подбираете картинки интерьеров, близкие Вам по цвету и настроению, затем берете фотоаппарат и идете в магазины. Фотографируете обои, мебель, пол, светильники (можно, конечно в интернете смотреть. но живьем эффективней). И собираете из фотографий коллаж, стараясь приблизиться к понравившимся образцам
Добрый вечер!
Помогите, пожалуйста, правильно организовать пространство.
Исходные данные: молодая пара, ожидающая пополнения, и 3-х комнатная квартира 63 кв.м.
Хотим сделать объединённую кухню и гостиную, наши варианты:
1. снести стену между двумя левыми комнатами и перенести туда кухню и гостиную, предварительно сделав конкретную шумоизоляцию, дабы не тревожить соседей звуками с кухни.
2. заложить вход в кухню (правая верхняя комната с балконом), объединить её с балконом, сделать гостиную из маленькой комнаты посередине, и оттуда сделать арочный вход на кухню. Полностью стену снести не получится, т.к. там стоит несущая балка. Но в этом случае гостиная получается совсем маленькая, даже диван с трудом поместится. Зато получается хоть какая-то прихожая, где возможно разместить шкаф для верхней одежды.
Подскажите советом, пожалуйста, как лучше сделать? Может быть у Вас будут наиболее удачные предложения?
Помогите, пожалуйста, правильно организовать пространство.
Исходные данные: молодая пара, ожидающая пополнения, и 3-х комнатная квартира 63 кв.м.
Хотим сделать объединённую кухню и гостиную, наши варианты:
1. снести стену между двумя левыми комнатами и перенести туда кухню и гостиную, предварительно сделав конкретную шумоизоляцию, дабы не тревожить соседей звуками с кухни.
2. заложить вход в кухню (правая верхняя комната с балконом), объединить её с балконом, сделать гостиную из маленькой комнаты посередине, и оттуда сделать арочный вход на кухню. Полностью стену снести не получится, т.к. там стоит несущая балка. Но в этом случае гостиная получается совсем маленькая, даже диван с трудом поместится. Зато получается хоть какая-то прихожая, где возможно разместить шкаф для верхней одежды.
Подскажите советом, пожалуйста, как лучше сделать? Может быть у Вас будут наиболее удачные предложения?
Вариант 2 (заложить проем в существующую кухню, объединить ее с гостиной) представляется наиболее предпочтительным:
- кухня остается на своем проектном месте и не понадобится переделывать коммуникации и устраивать подвод воды и канализации на новое место;
- как Вы заметили, возможность организации более функциональной прихожей;
- жилые комнаты остаются расположенными подальше от входной части и от шумов лестничной клетки.
P.S. хотя, конечно, руки поотрывать бы проектировщикам Вашего дома (извините, не удержался).
- кухня остается на своем проектном месте и не понадобится переделывать коммуникации и устраивать подвод воды и канализации на новое место;
- как Вы заметили, возможность организации более функциональной прихожей;
- жилые комнаты остаются расположенными подальше от входной части и от шумов лестничной клетки.
P.S. хотя, конечно, руки поотрывать бы проектировщикам Вашего дома (извините, не удержался).
Ну и так, между прочим кухню нельзя переносить в другое помещение.
Да сами не в восторге от планировки, а что делать, приходится выкручиваться:)
Андрейчег, знаем, но если всё грамотно сделать, думаю, получится отлично, тем более муж хочет именно так
Андрейчег, знаем, но если всё грамотно сделать, думаю, получится отлично, тем более муж хочет именно так
Да я про законы, буквы и т.д. Такую перепланировку не узаконите, чтобы вы все риски оценили
Domoremontnik
member
Интересная тема! А вы уже начали работы по этой перепланировке? Хотелось бы далее посмотреть результаты работ. Если можно.
89134881414
member
Знакомый мой хороший попросил))Сам с интернетом не очень дружит))Задача ? Кухня там крайне небольшая.Там стоит плита и стиралка.Стиралку узкую теоретически можно в коридор.Как можно увеличить обьем кухни? И за счет чего? В ванну стиралка тоже не входит)) Фото мелкое извиняюсь)) Такое прислали))
Алинка007
junior
Начнём работать над этим примерно с начала апреля, но это будет долгая история.
Посмотреть конечно можно будет, думаю, летом, будут первые фото:)))
Посмотреть конечно можно будет, думаю, летом, будут первые фото:)))
Rockwilder
member
Товарищи дизайнеры, посоветуйте пожалуйста, какой цвет линолеума будет оптимальным, если дано:
- Коридор с дверями цвета Бук (обычный классический бук)
- Встроенные шкафы-купе в коридоре Беленый дуб слегка с розоватым оттенком
- Коридор с дверями цвета Бук (обычный классический бук)
- Встроенные шкафы-купе в коридоре Беленый дуб слегка с розоватым оттенком
Добрый день, помогите советом .. Кухня будет цветовая палитра вот такая... Шкафчики серые внутри, светлый беж наверху, низ яркий. Фиолетово- лиловый цвет вот такой 2 снизу ... Вопросы следующие: стены по бокам какого тона лучше сделать? Будут жидкие обои. И напротив кухни стену какого оттенка, обои обычные или под покраску?! Фартук на кухни - город закат фиолетово- желтый... Контраст на стене напротив наверно не пойдет. Комната выходит на север, солнце только утром. Кухон диванчик и стол скорее всего по цвету венге( так как не понятно какой орех и ольха). Арка будет либо дуб, либо ясень.
Раз комната выходит на север - сделайте стены легкого желтого цвета (к тому желтому цвету, который будет на фартуке, но светлее). Обои под покраску.
И по этой же причине (север) - лучше не делайте мебель цвета венге, сделайте из ясеня или ольхи.
И по этой же причине (север) - лучше не делайте мебель цвета венге, сделайте из ясеня или ольхи.
Добрый день!
Не знаю, в каком топике задать вопрос, если не по адресу - отправьте куда следует...
Собственно вопрос - в многоквартирном доме витражное остекление. Стекла затонированы синей пленкой, - в комнате вечная полярная ночь.. могу ли я самовольно демонтировать пленку, будет ли это нарушением, нужно ли это согласовывать, где, с кем и как?
буду благодарна за советы!
фото - так выглядит дом
Не знаю, в каком топике задать вопрос, если не по адресу - отправьте куда следует...
Собственно вопрос - в многоквартирном доме витражное остекление. Стекла затонированы синей пленкой, - в комнате вечная полярная ночь.. могу ли я самовольно демонтировать пленку, будет ли это нарушением, нужно ли это согласовывать, где, с кем и как?
буду благодарна за советы!
фото - так выглядит дом
ТОП 5
2
