На информационном ресурсе применяются cookie-файлы. Оставаясь на сайте, вы подтверждаете свое согласие на их использование.
Вопрос архитектору - дизайнеру
472359
1000
Здравствуйте, всем!
Нужна помощь в перепланировке 2х комнатной в 3х комнатную. Необходимы две детские, спальня и кухня. Готов заказать проект у автора наиболее интересного варианта перепланировки.
Нужна помощь в перепланировке 2х комнатной в 3х комнатную. Необходимы две детские, спальня и кухня. Готов заказать проект у автора наиболее интересного варианта перепланировки.
Приличная планировка с заданными параметрами не получится. Не говоря уж о хорошей. И уж тем более о законной.
Слушайте, я пропустила параметр "вторая детская")
Тогда да - согласна с товарищем Буслаевым, это нереально.
Тогда да - согласна с товарищем Буслаевым, это нереально.
Большое спасибо за предложенные варианты!
Но хотелось бы жилые комнаты с окнами.
А если утеплить балкон и на месте кухни разместить детскую? Туалет можно перенести в ванную.
Узаканивать перепланировку не планирую.
Но хотелось бы жилые комнаты с окнами.
А если утеплить балкон и на месте кухни разместить детскую? Туалет можно перенести в ванную.
Узаканивать перепланировку не планирую.
Сейчас читают
Помощь приютам для животных
186499
1000
Пункт льготной стерилизации в НЕ (часть 2)
176435
1000
Дискус-Дома 82,83,91,92,96,97,98 (18-этажки) (часть 4)
189634
1000
Живу в панельной однёшке с так называемым альковом. У комнаты украден 1кв.м и добавлен к прихожей. Не знаю, как в прихожей использовать этот квадрат, а в комнате его не достаёт. Пыталась в этом алькове устроить спальное место, но там очень душно, плохая циркуляция воздуха. Сейчас cплю на диване воле окна, а так хочется иметь кровать.Конечно, можно к той стене пристроить шкаф, но мне одной двухметровый шкаф - сильно много. Посоветуйте, как мне разместить кровать, диван, компьютерный стол и шкаф в такой нестандартной комнате -бОльшая длина 5,4м, бОльшая ширина 3м, меньшая ширина 2м. Сносить стены нельзя. Заранее спасибо за ответ.
Два варианта-
Вариант 1 компактный: в алькове разместить шкаф 900 мм по фронту + комп.столик в пределах оставшейся части; посредине комнаты кровать перпендикулярно длинной стене; диван - спиной к окну (если войдет).
Вариант 2 просторный: в алькове большой шкаф; в нижнем левом углу *если по картинке - комп столик, кровать опять-таки у длинной стены, вдоль или поперек; от дивана отказаться.
Вариант 1 компактный: в алькове разместить шкаф 900 мм по фронту + комп.столик в пределах оставшейся части; посредине комнаты кровать перпендикулярно длинной стене; диван - спиной к окну (если войдет).
Вариант 2 просторный: в алькове большой шкаф; в нижнем левом углу *если по картинке - комп столик, кровать опять-таки у длинной стены, вдоль или поперек; от дивана отказаться.
Спасибо всем за неравнодушное отношение к моей проблеме
. Ещё хочу узнать мнение дизайнеров о мебель-трансформерах, например о таких кроватях.
. Ещё хочу узнать мнение дизайнеров о мебель-трансформерах, например о таких кроватях.Мнение такое, что это хорошо, но все зависит от качества механизма 

Механизм можно сделать под заказ-дорого, но надежно.
Вопрос только в том, через сколько дней вам надоест складывать и раскладывать целую кровать

Так совсем не обязательно каждый день ее убирать-пусть и стоит ,как кровать...А только -когда гости....
тогда легче оставить полноценную кровать и застилать ее, нет?)))
Есть у меня вопрос к дизайнерам. Имеем комнату 4х2,85, высота от пола до потолка 2,65м. На одной узкой стене балкон, на другой - дверной проем. Как в такой комнате на длинной стене будут смотреться такие фотообои ? По-моему, плохо: их надо издалека смотреть, 2,85м - маленькое расстояние, да и комната в целом небольшая. Меня убеждают, что будет нормально. Назначение комнаты - кабинет, из мебели планируется диван, компьютерный стол, небольшой шкаф/горка (для книг и небольшого телевизора).
И без того небольшая комната будет визуально казаться еще меньше из-за гипермасштаба чертежа полушарий.
посоветуйте, пожалуйста, как расставить мебель:
или наименьшими затратами создать уют и удобство для проживания меня, мужа, дочка 1,7 и скоро появится вторая дочка)
вот, что мы имеем на настоящий момент схематично:
1. кухня: сейчас утепляем лоджию и расширяем кухню за счет этого. на схеме уже отобразила планируемый вариант, вся мебель пока находится в кухне, может предложите более интересную расстановку
(барный стул - это детский стул для кормления)
2. Спальня: в скором времени ожидаем появление еще одного малыша, хотелось бы пока попробовать спать всем вместе в одной маленькой комнате, что бы вторая оставалась местом где можно отдохнуть, пока дети спят.Но как втиснуть всю имеющуюся мебель и еще одну детскую кроватку - вообще не представляю. Можно как-то заменить наше спальное место. Наше спальное место - это диван еврокнижка, но мы его очень редко складываем на практике)
3. Зал: Хочется оставить гостиной, местом где мы сидим за компом, смотрим телевизор, так же тут играет дочка и находятся ее игрушки. Есть мысль вынести рабочую зону с компьютером на утепленную лоджию (но пока только идет работа по утеплению, не знаю насколько там будет тепло зимой за закрытой дверью)
Шкаф в углу - угловой, что в реале не так громозко выглядит и идет единой конструкцией с тумбой под телевизор и навесным шкафом)
4.и еще нужен совет по украшению стен: стена над диваном и напротив дивана от двери до стола совершенно голые - чем сейчас можно интересно украсить стены и надо ли (картины/фотографии/что-то еще - без переклейки обоев)
сейчас у нас такое цветовое решение. Может посоветуете сменить цвет штор заодно, у меня какое-то ощущение, что что-то не так. в квартире не хватает какого-то уюта.
коридор я не стала прорисовывать, но там при входе встроенный шкаф и открытые вешалки для одежды (место занято)
или наименьшими затратами создать уют и удобство для проживания меня, мужа, дочка 1,7 и скоро появится вторая дочка)
вот, что мы имеем на настоящий момент схематично:
1. кухня: сейчас утепляем лоджию и расширяем кухню за счет этого. на схеме уже отобразила планируемый вариант, вся мебель пока находится в кухне, может предложите более интересную расстановку
(барный стул - это детский стул для кормления)
2. Спальня: в скором времени ожидаем появление еще одного малыша, хотелось бы пока попробовать спать всем вместе в одной маленькой комнате, что бы вторая оставалась местом где можно отдохнуть, пока дети спят.Но как втиснуть всю имеющуюся мебель и еще одну детскую кроватку - вообще не представляю. Можно как-то заменить наше спальное место. Наше спальное место - это диван еврокнижка, но мы его очень редко складываем на практике)
3. Зал: Хочется оставить гостиной, местом где мы сидим за компом, смотрим телевизор, так же тут играет дочка и находятся ее игрушки. Есть мысль вынести рабочую зону с компьютером на утепленную лоджию (но пока только идет работа по утеплению, не знаю насколько там будет тепло зимой за закрытой дверью)
Шкаф в углу - угловой, что в реале не так громозко выглядит и идет единой конструкцией с тумбой под телевизор и навесным шкафом)
4.и еще нужен совет по украшению стен: стена над диваном и напротив дивана от двери до стола совершенно голые - чем сейчас можно интересно украсить стены и надо ли (картины/фотографии/что-то еще - без переклейки обоев)
сейчас у нас такое цветовое решение. Может посоветуете сменить цвет штор заодно, у меня какое-то ощущение, что что-то не так. в квартире не хватает какого-то уюта.
коридор я не стала прорисовывать, но там при входе встроенный шкаф и открытые вешалки для одежды (место занято)
Что касается вопроса относительно "уютности, цветовой гаммы", то я посоветовала сменить шторы (цвет хороший, но довольно помпезный + фактура - четкая ассоциация с портьерами в театре). Несомненно стоит добавить в интерьер декоративную атрибутику,аксессуары..
-Персиковый отлично сочетается со сложными цветами: с кремовым, оранжевым, алым, коралловым, охрой
с зелеными теплыми оттенками: оливковый, яблоко, фисташковый, авокадо-из желтых тонов
сложные приглушенные - соломенный, горчичный, медовый
-для четкости композиции можно слегка добавить черного, шоколадного (что видно на примере приложенных файлов)
Посмотрите европейские интерьеры, они наполнены уютом и теплотой, и не бойтесь смешивать цвета (только делать это надо правильно!) в интернете масса информации и советов,как это правильно делать.
-Персиковый отлично сочетается со сложными цветами: с кремовым, оранжевым, алым, коралловым, охрой
с зелеными теплыми оттенками: оливковый, яблоко, фисташковый, авокадо-из желтых тонов
сложные приглушенные - соломенный, горчичный, медовый
-для четкости композиции можно слегка добавить черного, шоколадного (что видно на примере приложенных файлов)
Посмотрите европейские интерьеры, они наполнены уютом и теплотой, и не бойтесь смешивать цвета (только делать это надо правильно!) в интернете масса информации и советов,как это правильно делать.
К вопросу о расстановке мебели:
1. На кухне впринципе мебель расположена наиболее удобно и компактно. (+появляется дополнительное место за счет утепленной лоджии)
2. На счет гостиной: многие делают именно так,как Вы назвали: делают из лоджии маленький кабинетик - рабочее место, если утепление сделано грамотно, то дискомфорта и холода быть не должно), а если все же оставить стол в комнате, то может быть логичнее его разместить ближе к противоположной стены ,к окну, чтобы свет падал с левой стороны (если Вы правша). Диван поставить на противоположную сторону, а телевизор,для удобства просмотра,как раз повесить напротив.
1. На кухне впринципе мебель расположена наиболее удобно и компактно. (+появляется дополнительное место за счет утепленной лоджии)
2. На счет гостиной: многие делают именно так,как Вы назвали: делают из лоджии маленький кабинетик - рабочее место, если утепление сделано грамотно, то дискомфорта и холода быть не должно), а если все же оставить стол в комнате, то может быть логичнее его разместить ближе к противоположной стены ,к окну, чтобы свет падал с левой стороны (если Вы правша). Диван поставить на противоположную сторону, а телевизор,для удобства просмотра,как раз повесить напротив.
шторы у меня как раз задумывались как оранжевые, но оттенок оранжево-терракотовый, видимо, надо или ярче или фактурнее.
А вот темных акцентов - это в точку - именно их у меня не хватает.
А на счет спальни, можете посоветовать, как можно разместить двух детей и наше спальное место?
А вот темных акцентов - это в точку - именно их у меня не хватает.
А на счет спальни, можете посоветовать, как можно разместить двух детей и наше спальное место?
Ну вот с этим сложновато будет, тесно будет в любом случае,если вы все вчетвером будете в одной комнате спать. Сколько она квадратов?
11-12 м2
может как-то изменить наше спальное место?
может как-то изменить наше спальное место?
Совсем прямо не большая комнатка..
Ну Вы можете отказать от кровати, в пользу дивана (который в сложенном состоянии будет занимать гораздо меньше места, чем двуспальная кровать). И поставить его например у правой от двери стены. А у противоположной стены место будет для двух маленьких кроваток.
В будущем удобно будет : вы наверняка, переедете в соседнюю комнату, а две девочки будут жить в этой спальне. Ну или наоборот
Ну Вы можете отказать от кровати, в пользу дивана (который в сложенном состоянии будет занимать гораздо меньше места, чем двуспальная кровать). И поставить его например у правой от двери стены. А у противоположной стены место будет для двух маленьких кроваток.
В будущем удобно будет : вы наверняка, переедете в соседнюю комнату, а две девочки будут жить в этой спальне. Ну или наоборот

Здравствуйте, дорогие дизайнеры!
У меня такая идея - очень люблю вино и хочу сделать его тематикой кухни.
Будет стеклянный фартук, под ним коллаж из винных этикеток, какая-нибудь стильная подставка для бутылок, типа этой, стены я думаю в таком случае должны быть однотонными, без всяких цветочков и хохоряшечек
возможно светлыми.
Но вот вопрос - какого цвета делать гарнитур? Деревянные фасады не хочу, ибо бюджет ограничен, а дешевые они и смотрятся ...соответственно.
Что посоветуете насчет пола и стен?
Кстати, пол - коричнево-бежевые шахматы))
Не хотелось бы "винный погребок аля совдеп" с искуственными камнями и пластмассовым виноградом
У меня такая идея - очень люблю вино и хочу сделать его тематикой кухни.
Будет стеклянный фартук, под ним коллаж из винных этикеток, какая-нибудь стильная подставка для бутылок, типа этой, стены я думаю в таком случае должны быть однотонными, без всяких цветочков и хохоряшечек
возможно светлыми.Но вот вопрос - какого цвета делать гарнитур? Деревянные фасады не хочу, ибо бюджет ограничен, а дешевые они и смотрятся ...соответственно.
Что посоветуете насчет пола и стен?
Кстати, пол - коричнево-бежевые шахматы))
Не хотелось бы "винный погребок аля совдеп" с искуственными камнями и пластмассовым виноградом

Вариант 1 ("идеальный"): стены белая грубая штукатурка + деревянные темные фасады (дуб, мореный, дымчатый etc.). Принцип - светлый фон / темная мебель. Деревянные фасады необязательно филенчатые.
Вариант 2 : стены темные + темные фасады (крашеные в тон дерева / темного винограда = эконом-вариант), с подсветкой фартука с коллажем из этикеток. Принцип - темный фон / освещенный элемент интерьера.
Такие вот ассоциации с темой вина
.
Вариант 2 : стены темные + темные фасады (крашеные в тон дерева / темного винограда = эконом-вариант), с подсветкой фартука с коллажем из этикеток. Принцип - темный фон / освещенный элемент интерьера.
Такие вот ассоциации с темой вина
.Тут бы автору вопроса и выложить кусочек пола, кусочек печати на фартук.
Трудно советовать, не понимая картины целиком.
Я просто очень сомневаюсь в сочетании черный виноград - коричнево-бежевые шахматы...
Если коричневый не шоколад, а из рыже-коричневых - это будет трагедия)
Трудно советовать, не понимая картины целиком.
Я просто очень сомневаюсь в сочетании черный виноград - коричнево-бежевые шахматы...
Если коричневый не шоколад, а из рыже-коричневых - это будет трагедия)
Ну, полную гарантию от трагедии может дать только проект с авторским надзором, все же понимают 

подскажите, где можно заказать такую конструкцию для телевизора-хочу разделить зону кухни и жилую такой перегородкой
У мебельщиков, которые с металлом дружат. В Нске не рискну никого посоветовать 

знающие люди,напишите свои замечания и идеи по поводу перепланировки моей.
получается в крайних комнатах были выделены гардеробные,а стоит ли? также меня интересует расположение мебели на кухне,она по проекту располагается с двух сторон или убрать одну сторону мебели,чтоб свободнее было?
получается в крайних комнатах были выделены гардеробные,а стоит ли? также меня интересует расположение мебели на кухне,она по проекту располагается с двух сторон или убрать одну сторону мебели,чтоб свободнее было?
Показать спойлер
Показать спойлер
блин, уже провод вывели посреди комнаты( а это обязательно должна быть металлическая конструкция?
Ее можно "имитировать", я думаю.
Собрать каркас из профилей для гипсокартона (усиленный, естественно ибо ТВ) и сверху обшить мебельными панелями, внутри как раз пропустите все свои провода.
Собрать каркас из профилей для гипсокартона (усиленный, естественно ибо ТВ) и сверху обшить мебельными панелями, внутри как раз пропустите все свои провода.
AventuraPro
activist
Ищу дизайнера по интерьерам для административного помещения (дизайн вестибюля).
Нужен небанальный дизайн, грамотно продуманный интересный свет (это важно).
Предложения в личку!
Спасибо большое!
Нужен небанальный дизайн, грамотно продуманный интересный свет (это важно).
Предложения в личку!
Спасибо большое!
Для устойчивости металлический каркас/ и обшивка (фанера, мдф или гипсоволокнистые листы под отделку).
Гардеробные логично было разместить внутри самих комнат. В кухне одной стороной не обойдетесь - проще убрать прямую дверь из коридора в кухню и сделать кухню Г-образную или П -образную. Это "навскидку".
Про проект в целом - проект ужасен
.
Про проект в целом - проект ужасен
.а внутри комнат гардеробные сделать ,простите, это как? можно пример? г образную кухню вообще не хочу,п-образная не устраивает,так как не хочу на кухню ходить через зал..часто в гостях бабушки ночуют..ну а почему ужасен проект то???я ж поэтому то и посоветоваться пришла...просто мне сама по себе квартира не очень нравится,вернее планировка.коридоры эти ни туда и ни сюда...и шкафы нужны,очень.барахла много..
что касается гардеробной в комнате справа,то она мне не очень нравится,так как часть комнаты опять же уходит на коридор
измучилась вся
измучилась всяДело в том, что изначально планировка дома, в котором Ваша квартира, "заточена" под коридоры и с этим мало что можно сделать, если принимать во внимание все "хочу" и "не хочу".
да это понятно.поэтому и спрашиваю людей,у которых видение есть всего этого,как лучше сделать....может кто идеи какие подскажет
Можно решить вот так:
1) кухню расположить вдоль длинной стены, но нужно будет тщательно спланировать обеденную зону; также можно рассмотреть вариант выноса обеденной зоны вправо, в гостиную (тогда кухня получится вообще просторная);
2) справа убрать все перегородки, сделать просто линию шкафов-купе во всю стену гостиной;
3) слева часть коридора отдать дальней комнате, таким образом гардеробная окажется внутри комнаты; в данном случае лучше поступить таким образом;
4) ванную рекомендую сделать совмещенной, в кр. случае внутри сделать дверь - для того , чтобы убрать лишнюю дверь в и без того тесной прихожей.
1) кухню расположить вдоль длинной стены, но нужно будет тщательно спланировать обеденную зону; также можно рассмотреть вариант выноса обеденной зоны вправо, в гостиную (тогда кухня получится вообще просторная);
2) справа убрать все перегородки, сделать просто линию шкафов-купе во всю стену гостиной;
3) слева часть коридора отдать дальней комнате, таким образом гардеробная окажется внутри комнаты; в данном случае лучше поступить таким образом;
4) ванную рекомендую сделать совмещенной, в кр. случае внутри сделать дверь - для того , чтобы убрать лишнюю дверь в и без того тесной прихожей.
Чуть усовершенствованный план.
И еще я бы посоветовал подумать над тем, чтобы перегородку с ТВ сделать не до потолка.
И еще я бы посоветовал подумать над тем, чтобы перегородку с ТВ сделать не до потолка.
Стена между комнатой и кухней несущая ? И из какого материала?
оооо,спасибо большое!пошла обдумывать!

стена между кухней и большой комнатой из материала типа гипса чтоли...хрупенький такой.а стена между кухней и комнатой поменьше несущая,я даж не знаю из чего (может кирпичи?), так как дом кирпичный,не каркас
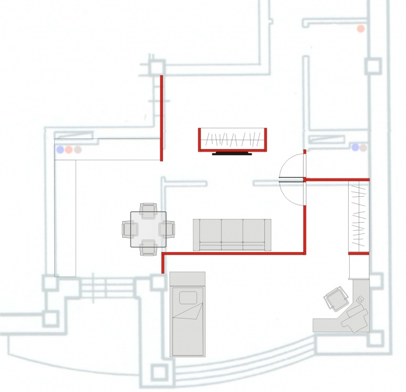
Есть вот такая квартира. Никакой перепланировки, объединения помещений, сноса стен не будет. Квартира нравится именно с такой планировкой. Есть вопросы с расстановкой мебели. Точнее, я понимаю, что в какой комнате хочу, но как-то все это очень стандартно. Может, у кого-нибудь будут интересные идеи? Назначение комнат: № 6 - спальня, № 5 - зал/гостиная (двери передвинуты по центру), № 9 - кабинет, но в нем должно быть спальное место (диван). В зале хотелось бы ограничиться мягкой мебелью, журнальным столиком и теле/видео/аудиоаппаратурой (без шкафов/стенок). И вопрос по освещению маленького коридора (№ 10): нужен ли там свет? Или достаточно света от прилегающих помещений? Изначально его там нет, и мы не хотели делать, а теперь задумались.
P.S. Если это важно, количество проживающих 2.
P.S. Если это важно, количество проживающих 2.
Это задание на проектирование, а не вопрос.
С расстановкой мебели, наверное, да, а про освещение в коридоре?
ТОП 5
1
2
4
