На информационном ресурсе применяются cookie-файлы. Оставаясь на сайте, вы подтверждаете свое согласие на их использование.
В стекловолоконную трубочку одета та часть кабеля (жилы без верхней изоляции) которые выходят из под вагонки и ныряют в сам светильник. про температуру эксплуатации в курсе так что не надо умничать.
про все остальное - на вкус и цвет все фломастеры разные.
под полком точно такой же "харвиа" установлен.
и последнее, я не рекламирую данный светильник или производителя.
Удалено по п. 7.
про все остальное - на вкус и цвет все фломастеры разные.
под полком точно такой же "харвиа" установлен.
и последнее, я не рекламирую данный светильник или производителя.
Удалено по п. 7.
Здравствуйте! Требуется электрик. В квартире не работает 5 розеток и свет в сан.узле. Необходимо найти причины и починить) С вопросами и предложениями в ЛС
Спасибо тем, кто откликнулся! Уже договорилась с человеком.
Добрый день,нужен электрик для проводки электричества в новый дачный деревянный дом. С опытом работы в деревянных домах.Предложения с ценами и все вопросы в личку.
Добрый день! В каком направление находится дача?
Здравствуйте. Подскажите, сколько будет стоить пробить штробы в 2х комнатах по стене и сделать подрезетники. Работать штроборезом + пылесос. Если пыли не много будет, то тогда сразу в 3х комнатах и кухне. Дом панельный.
120 руб/метр штрабы в бетоне, 250 подрозетник.
Сейчас читают
30 ноября, Пионерский лагерь
133546
1010
красота и материнство (часть 122)
271052
1000
Ганя & Co., нужна помощь в прокорме (часть 4)
58762
324
alexei5152
junior
День добрый!
Требуется в одной комнате установить 4-5 розеток, и выключатель, в комнате есть одна розетка и место для выключателя. штроборез+пылесос.
панельный многоквартирный дом на Выборной
Требуется в одной комнате установить 4-5 розеток, и выключатель, в комнате есть одна розетка и место для выключателя. штроборез+пылесос.
панельный многоквартирный дом на Выборной
SetTopBox
activist
Добрый вечер.
Есть возможность подождать до первых чисел? В данный момент сильно загружены, включая выходные.
PS. Весь инструмент профессиональный, т.е. пылеудаления стандартная опция.
Есть возможность подождать до первых чисел? В данный момент сильно загружены, включая выходные.
PS. Весь инструмент профессиональный, т.е. пылеудаления стандартная опция.
Monolit_nsk
junior
Добрый день. Требуется электрик. Разводка проводки для точечных светильников, дополнительные розетки, в т.ч. ванная комната. Новостройка.
здравствуйте, нужен электрик для замены 2-х розеток:
- одинарную на двойную (в одном стакане)
- плиточную на двойную (плита + стандартная)
геммороя не будет (новые розетки куплены), новостройка - все сделано аккуратно! нужно так же аккуратно переделать.
территориально площадь калинина
- одинарную на двойную (в одном стакане)
- плиточную на двойную (плита + стандартная)
геммороя не будет (новые розетки куплены), новостройка - все сделано аккуратно! нужно так же аккуратно переделать.
территориально площадь калинина
Добрый день! Требуется электрик сделать разводку по дому - новостройка - 97 кв.
Всем привет.
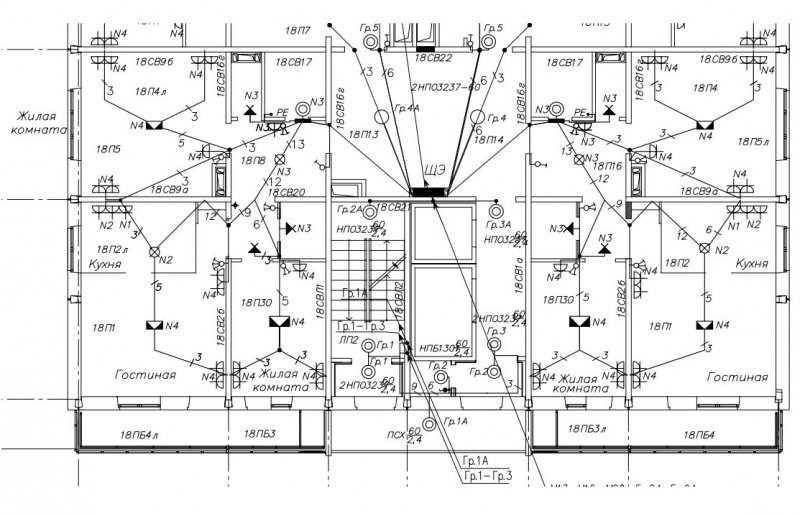
Хочу поделиться информацией по электрике (18 этажка, трешка студия):
В оборудуемом жилом доме применена скрытая сменяемая прокладка проводов, для осуществления которой используются трубы, заложенные в стеновых панелях и панелях плит перекрытий. Проектом предусматривается установка коробок для выключателей и штепсельных розеток при изготовлении стеновых панелей на заводе.
Распределительные сети от этажных до квартирных щитков выполняются проводом ПВЗ—10мм2.
Групповая сеть в квартирах от квартирных щитков выполняется проводом ПВ1—2,5 мм2, к электроплите — ПВ1 — 6,0 мм2, прокладываемая в трубах, заложенных в стеновых панелях и панелях плит перекрытий. В кирпичной и сибитовой кладке — кабелем ВВГнг 3x2,5 в штробах под слоем штукатурки, в сборных перегородках — кабелем ВВГнгLS 3x2,5 в гибких ПХВ трубах, спуски к выключателям и отходы от распаечных коробок до светильников — кабелем ВВГнг, ВВГнгLS и проводом ПВ—1 сечением 1,5 мм2.
Хочу поделиться информацией по электрике (18 этажка, трешка студия):
В оборудуемом жилом доме применена скрытая сменяемая прокладка проводов, для осуществления которой используются трубы, заложенные в стеновых панелях и панелях плит перекрытий. Проектом предусматривается установка коробок для выключателей и штепсельных розеток при изготовлении стеновых панелей на заводе.
Распределительные сети от этажных до квартирных щитков выполняются проводом ПВЗ—10мм2.
Групповая сеть в квартирах от квартирных щитков выполняется проводом ПВ1—2,5 мм2, к электроплите — ПВ1 — 6,0 мм2, прокладываемая в трубах, заложенных в стеновых панелях и панелях плит перекрытий. В кирпичной и сибитовой кладке — кабелем ВВГнг 3x2,5 в штробах под слоем штукатурки, в сборных перегородках — кабелем ВВГнгLS 3x2,5 в гибких ПХВ трубах, спуски к выключателям и отходы от распаечных коробок до светильников — кабелем ВВГнг, ВВГнгLS и проводом ПВ—1 сечением 1,5 мм2.
спасибо за инфу! скопировал себе
sten212212
guru
Вообще ничего не поняла, но т.к. жду именно 3-с и именно в свечке скопировала))))
HelenSah
experienced
я тоже не поняла, но скопировала
мне б было понятнее - соответствует ли в вашей квартире проводка нормам)

мне б было понятнее - соответствует ли в вашей квартире проводка нормам)
Все соответствует ПУЭ (ПРАВИЛА УСТРОЙСТВА ЭЛЕКТРОУСТАНОВОК). 
Если проще, то раньше я считал , что нужно будет переделывать все с нуля. Но теперь вижу что все спроектировано достаточно хорошо и для себя, мне необходимо будет внести мелкие незначительные изменения.

Если проще, то раньше я считал , что нужно будет переделывать все с нуля. Но теперь вижу что все спроектировано достаточно хорошо и для себя, мне необходимо будет внести мелкие незначительные изменения.
Большое спасибо.
Понятно, что ничего не понятно
, но информация очень нужная, скопировала.
Понятно, что ничего не понятно

вам повезло, это очень хорошо!
А каким образом осуществляется соединение электропроводки в распаечных коробках? Скрутка или клеммники? Не в курсе?)
тоже поделюсь статьей, кое-что пригодится.
54 ошибки при ремонте, которые не стоит повторять
Опубликовано InMyRoom 8 Июль 2014
Источник
Обустройство, ремонт, мебель, Строительные материалы, Интересное, Полезные советы
Чего бы я никогда не повторил, если бы снова затеял ремонт - обычные люди, сделавшие ремонт, делятся рекомендациями и рассказывают об ошибках, которые допустили. Все замечания основаны исключительно на личном опыте и выражают личное мнение людей, переживших ремонт.
Один из законов Мэрфи гласит: «Обычно мы только после работы понимаем, с чего её надо было начать».
Не так давно мы наткнулись на любопытную подборку советов. Краткое резюме этого длинного списка: тщательно продумайте все заранее, по возможности создайте полноценный дизайн проект, включающий планы электрики, розеток, теплых полов, расстановки мебели; не экономьте на качественных материалах и сантехнике — разница будет ощутима; секрет создания функционального и удобного интерьера: теплые полы, большое количество розеток и мест для хранения. Уверены, что ознакомившись с подборкой, вы сможете избежать многих стандартных ошибок при ремонте своей квартиры.
1. Линолеум — это ужасно, а белить потолки вдвойне глупость.
2. Не доверю ремонт жене. Пусть она его делает под руководством дизайнера. А то большинство квартир моих знакомых ничем не отличаются друг от друга — копируют друг друга, где надо и не надо.
3. На кухне лучше предусмотреть короб под гофру для вытяжки.
4. Никогда не разделю разделочную зону кухни с варочной панелью
5. Никогда не буду использовать ковролин.
6. Никогда не повешу верхние шкафы кухни выше линии глаз.
7. Не стал бы на кухне класть ламинат или паркетную доску. Первая протечка — и все вздулось…
8. Зря поставила кухонную мебель вдоль всей стены в прямоугольной кухне, гораздо удобнее расположить углом.
9. Не стану экономить на сантехнике и плитке: потом будет убого смотреться несколько лет, а переделывать уже не станешь.
10. Зря сделали маленькую гардеробную, чтобы больше места осталось в комнате. Эти полметра комнату не спасут, а когда гардеробная забьется битком, другую не построишь.
11. Основываясь на набитых шишках, ни за что не стал бы делать разводку электричества по квартире, не сделав предварительно план расстановки мебели.
12. Много открытых полок с кучей сувениров. Это настоящий пылесборник.
13. Не устанавливать розетки «в пол». Очень неудобно, постоянно открыты, копится пыль и невозможно нормально вымыть пол.
14. Не забыть установить розетки прямо в ванной комнате для фена, электрического набора для маникюра и бритвы. Можно одну, но тогда выбрать зеркало, в которое тоже встроены розетки на манер удлинителя.
15. Предусмотреть реостаты (диммеры) в спальне ребенка, чтобы свет включать не резко, а медленно.
16. Сделать теплый пол. В принципе, в первое время его можно даже не включать, но сделать лучше сразу.
17. Галогеновые лампочки лучше выбрать с углом наклона, а не жестко закрепленные.
18. Если проводка старая — полностью заменить. Кстати, хорошо бы записать (или сфотографировать с замерами) ее расположение, а то потом именно в проводку и не попадёшь.
19. Предусмотреть вход в квартиру для всех возможных кабелей (широкий кабель-канал).
20. Выключатели все «евро» (на высоте 80-90 см) — чтобы дети могли включить свет, не прыгая.
21. Свет и розетку на балкон, на всякий случай.
22. Подсветка в кухне над рабочей поверхностью (встроенные светильники в козырьке кухни — это красиво, но не функционально).
23. Использовать два выключателя / включателя — при входе и у кровати в спальне, чтобы не вставать с кровати, желая выключить свет. То же самое касается длинного коридора.
24. Полы теплые обязательно с таймером, а то если утром включать, то прогревается за 2 часа.
25. Место под счетчик выбрать заранее. А то прихожую теперь не пристроить нормально. Счетчик неудачно висит, и над ним сверлить стену страшно — провода.
26. Двери со стеклянной вставкой разонравились: если в комнате ребенок засыпает, свет в коридоре отсвечивает.
27. Возле горячих поверхностей должны размещаться огнеупорные материалы. У нас полипропиленовая отделка возле каминной трубы стекла по стене — расплавилась.
28. Батареи не надо зашивать слишком сильно, нужно оставить доступ к их перекрытию.
29. Если вы собираетесь делать встроенные шкафы или комоды на заказ, обязательно ровнять стены.
30. Продумывать мелочи надо заранее. Уже после ремонта купили водонагреватель на 80 литров, решили ставить в туалете, понадобилась розетка — пришлось штробить по новым обоям.
31. При установке ванной не были положены бордюрчики на стене, где она стыкуется с плиткой, а просто затёрто силиконовым герметиком… Итог: в уголках всегда стоит вода.
32. У нас на кухне очень красивая испанская плитка, один минус — очень глубокие фаски, там всякая грязь быстро скапливается и плохо вымывается. Надо было выбирать абсолютно ровную, но не глянцевую, и чтобы фасок почти не было.
33. С розетками беда. Их надо гораздо больше, чем кажется, особенно на кухне. Лучше не одинарные, а двойные: по цене одно и то же, зато потом не нарадуетесь.
34. При установке ванны, следите, чтобы наклон чаши сделали к сливу, а то вода почти не уходит, если ванну по уровню ставить.
35. Не забывайте про полотенцесушитель.
36. Очень шумит канализационная труба, когда соседи сверху пользуются унитазом. Всем хороши пластиковые трубы, но вот шумят изрядно, так что делайте звукоизоляцию — оборачивайте трубу чем-нибудь.
37. Натяжные потолки — это супер. Делайте сразу во всю квартиру и торгуйтесь в фирме, где будете заказывать.
38. Никогда бы не сделала угловую сушилку на кухне — очень не удобно.
39. Не использовать белую затирку для плитки на кухне – грязно будет выглядеть.
40. Теплые полы — везде, где есть плитка, нужны обязательно.
41. Когда устанавливали межкомнатные двери, даже в голову не пришло, что выключатель должен находиться рядом с ручкой, открывающей дверь. А мы их повесили так, что выключатель оказался со стороны петель.
42. Если есть хоть какое-то место, которым можете пожертвовать в пользу кладовки, сделайте это. Пылесосы, ролики, санки, лыжи, новогодние игрушки, швабры, тазы, ведра, бытовая техника, которой пользуемся не каждый день — всё там.
43. У нас темный паркет мербау. Очень красиво смотрится, но на таком темном полу, особенно в солнечный день, видна каждая пылинка, поэтому приходится убирать каждый день.
44. В туалете, ванной (и везде, где есть много влаги) обязательно нужен натяжной потолок. Красиво, ничего не разбухает, не отваливается, но самое главное — если вас залили соседи, вода не разливается широко по вашей квартире, а собирается в этом самом потолке. Нас спасал уже 2 раза. Потом вызывали мастеров, они снимали часть потолка, сливали воду, и обратно его устанавливали.
45. В ванной розетки должны быть влагозащищенные (с крышечкой) — стиральная машина, фен, бритва и электрическая зубная щетка просто жизненно необходимы.
46. Нужна принудительная вытяжка в санузле.
47. Сделать скрытые места для хранения (например, ведер, тряпок, химии и прочих хоз.принадлежностей).
48. Раскошелилась бы на дизайнера, чтобы сразу видеть всю картину. Много чего не нравится именно из-за непродуманности.
49. Дверные ручки с острыми уголками — периодически кто-то задевает их рукой или еще чем-то, это больно и одежда рвётся.
50. Никогда не буду клеить в детскую «пушистые» обои, которые можно оторвать в процессе засыпания. Дети все время там ковыряют пальчиком — ободрали уже все возле кровати.
51. Все точные размеры мебели узнала бы до ремонта. На кухне диван, который хотим купить, имеет высоту спинки 90 см — выключатель для бра начинается с высоты 86 см. Попал прямо в спинку.
53. Мы пережили капитальный ремонт и поняли, что самое главное — не экономить на материалах: обои, краска, клей — все должно быть хорошего качества.
54. На кухне у меня много неудачных моментов. Например, маленькая раковина из керамогранита: теперь у меня посуда горой рядом с ней, ждет очереди в посудомойку. Мало заказала выдвижных механизмов — дорого казалось, но надо было сделать. Зря заказывала стеклянные полупрозрачные дверцы — видно все, что лежит на полках.
54 ошибки при ремонте, которые не стоит повторять
Опубликовано InMyRoom 8 Июль 2014
Источник
Обустройство, ремонт, мебель, Строительные материалы, Интересное, Полезные советы
Чего бы я никогда не повторил, если бы снова затеял ремонт - обычные люди, сделавшие ремонт, делятся рекомендациями и рассказывают об ошибках, которые допустили. Все замечания основаны исключительно на личном опыте и выражают личное мнение людей, переживших ремонт.
Один из законов Мэрфи гласит: «Обычно мы только после работы понимаем, с чего её надо было начать».
Не так давно мы наткнулись на любопытную подборку советов. Краткое резюме этого длинного списка: тщательно продумайте все заранее, по возможности создайте полноценный дизайн проект, включающий планы электрики, розеток, теплых полов, расстановки мебели; не экономьте на качественных материалах и сантехнике — разница будет ощутима; секрет создания функционального и удобного интерьера: теплые полы, большое количество розеток и мест для хранения. Уверены, что ознакомившись с подборкой, вы сможете избежать многих стандартных ошибок при ремонте своей квартиры.
1. Линолеум — это ужасно, а белить потолки вдвойне глупость.
2. Не доверю ремонт жене. Пусть она его делает под руководством дизайнера. А то большинство квартир моих знакомых ничем не отличаются друг от друга — копируют друг друга, где надо и не надо.
3. На кухне лучше предусмотреть короб под гофру для вытяжки.
4. Никогда не разделю разделочную зону кухни с варочной панелью
5. Никогда не буду использовать ковролин.
6. Никогда не повешу верхние шкафы кухни выше линии глаз.
7. Не стал бы на кухне класть ламинат или паркетную доску. Первая протечка — и все вздулось…
8. Зря поставила кухонную мебель вдоль всей стены в прямоугольной кухне, гораздо удобнее расположить углом.
9. Не стану экономить на сантехнике и плитке: потом будет убого смотреться несколько лет, а переделывать уже не станешь.
10. Зря сделали маленькую гардеробную, чтобы больше места осталось в комнате. Эти полметра комнату не спасут, а когда гардеробная забьется битком, другую не построишь.
11. Основываясь на набитых шишках, ни за что не стал бы делать разводку электричества по квартире, не сделав предварительно план расстановки мебели.
12. Много открытых полок с кучей сувениров. Это настоящий пылесборник.
13. Не устанавливать розетки «в пол». Очень неудобно, постоянно открыты, копится пыль и невозможно нормально вымыть пол.
14. Не забыть установить розетки прямо в ванной комнате для фена, электрического набора для маникюра и бритвы. Можно одну, но тогда выбрать зеркало, в которое тоже встроены розетки на манер удлинителя.
15. Предусмотреть реостаты (диммеры) в спальне ребенка, чтобы свет включать не резко, а медленно.
16. Сделать теплый пол. В принципе, в первое время его можно даже не включать, но сделать лучше сразу.
17. Галогеновые лампочки лучше выбрать с углом наклона, а не жестко закрепленные.
18. Если проводка старая — полностью заменить. Кстати, хорошо бы записать (или сфотографировать с замерами) ее расположение, а то потом именно в проводку и не попадёшь.
19. Предусмотреть вход в квартиру для всех возможных кабелей (широкий кабель-канал).
20. Выключатели все «евро» (на высоте 80-90 см) — чтобы дети могли включить свет, не прыгая.
21. Свет и розетку на балкон, на всякий случай.
22. Подсветка в кухне над рабочей поверхностью (встроенные светильники в козырьке кухни — это красиво, но не функционально).
23. Использовать два выключателя / включателя — при входе и у кровати в спальне, чтобы не вставать с кровати, желая выключить свет. То же самое касается длинного коридора.
24. Полы теплые обязательно с таймером, а то если утром включать, то прогревается за 2 часа.
25. Место под счетчик выбрать заранее. А то прихожую теперь не пристроить нормально. Счетчик неудачно висит, и над ним сверлить стену страшно — провода.
26. Двери со стеклянной вставкой разонравились: если в комнате ребенок засыпает, свет в коридоре отсвечивает.
27. Возле горячих поверхностей должны размещаться огнеупорные материалы. У нас полипропиленовая отделка возле каминной трубы стекла по стене — расплавилась.
28. Батареи не надо зашивать слишком сильно, нужно оставить доступ к их перекрытию.
29. Если вы собираетесь делать встроенные шкафы или комоды на заказ, обязательно ровнять стены.
30. Продумывать мелочи надо заранее. Уже после ремонта купили водонагреватель на 80 литров, решили ставить в туалете, понадобилась розетка — пришлось штробить по новым обоям.
31. При установке ванной не были положены бордюрчики на стене, где она стыкуется с плиткой, а просто затёрто силиконовым герметиком… Итог: в уголках всегда стоит вода.
32. У нас на кухне очень красивая испанская плитка, один минус — очень глубокие фаски, там всякая грязь быстро скапливается и плохо вымывается. Надо было выбирать абсолютно ровную, но не глянцевую, и чтобы фасок почти не было.
33. С розетками беда. Их надо гораздо больше, чем кажется, особенно на кухне. Лучше не одинарные, а двойные: по цене одно и то же, зато потом не нарадуетесь.
34. При установке ванны, следите, чтобы наклон чаши сделали к сливу, а то вода почти не уходит, если ванну по уровню ставить.
35. Не забывайте про полотенцесушитель.
36. Очень шумит канализационная труба, когда соседи сверху пользуются унитазом. Всем хороши пластиковые трубы, но вот шумят изрядно, так что делайте звукоизоляцию — оборачивайте трубу чем-нибудь.
37. Натяжные потолки — это супер. Делайте сразу во всю квартиру и торгуйтесь в фирме, где будете заказывать.
38. Никогда бы не сделала угловую сушилку на кухне — очень не удобно.
39. Не использовать белую затирку для плитки на кухне – грязно будет выглядеть.
40. Теплые полы — везде, где есть плитка, нужны обязательно.
41. Когда устанавливали межкомнатные двери, даже в голову не пришло, что выключатель должен находиться рядом с ручкой, открывающей дверь. А мы их повесили так, что выключатель оказался со стороны петель.
42. Если есть хоть какое-то место, которым можете пожертвовать в пользу кладовки, сделайте это. Пылесосы, ролики, санки, лыжи, новогодние игрушки, швабры, тазы, ведра, бытовая техника, которой пользуемся не каждый день — всё там.
43. У нас темный паркет мербау. Очень красиво смотрится, но на таком темном полу, особенно в солнечный день, видна каждая пылинка, поэтому приходится убирать каждый день.
44. В туалете, ванной (и везде, где есть много влаги) обязательно нужен натяжной потолок. Красиво, ничего не разбухает, не отваливается, но самое главное — если вас залили соседи, вода не разливается широко по вашей квартире, а собирается в этом самом потолке. Нас спасал уже 2 раза. Потом вызывали мастеров, они снимали часть потолка, сливали воду, и обратно его устанавливали.
45. В ванной розетки должны быть влагозащищенные (с крышечкой) — стиральная машина, фен, бритва и электрическая зубная щетка просто жизненно необходимы.
46. Нужна принудительная вытяжка в санузле.
47. Сделать скрытые места для хранения (например, ведер, тряпок, химии и прочих хоз.принадлежностей).
48. Раскошелилась бы на дизайнера, чтобы сразу видеть всю картину. Много чего не нравится именно из-за непродуманности.
49. Дверные ручки с острыми уголками — периодически кто-то задевает их рукой или еще чем-то, это больно и одежда рвётся.
50. Никогда не буду клеить в детскую «пушистые» обои, которые можно оторвать в процессе засыпания. Дети все время там ковыряют пальчиком — ободрали уже все возле кровати.
51. Все точные размеры мебели узнала бы до ремонта. На кухне диван, который хотим купить, имеет высоту спинки 90 см — выключатель для бра начинается с высоты 86 см. Попал прямо в спинку.
53. Мы пережили капитальный ремонт и поняли, что самое главное — не экономить на материалах: обои, краска, клей — все должно быть хорошего качества.
54. На кухне у меня много неудачных моментов. Например, маленькая раковина из керамогранита: теперь у меня посуда горой рядом с ней, ждет очереди в посудомойку. Мало заказала выдвижных механизмов — дорого казалось, но надо было сделать. Зря заказывала стеклянные полупрозрачные дверцы — видно все, что лежит на полках.
OlegAtor1982
guru
я за СИЗы,ибо клемники аля ваго ток на освещение годно и лично меня ничто в этом не разубедит.
А скрутка-пайка через чур геморойна для любителя.
А скрутка-пайка через чур геморойна для любителя.
спасибо) все скопировала в папку по 3С, и текст тоже) правда ничего не поняла. это хорошо или плохо, что так сделана проводка?
Неа, не в курсе. Думаю что это на усмотрение подрядчика, который занимается монтажем 

bonanza
veteran
я за СИЗы,ибо клемники аля ваго ток на освещение годно и лично меня ничто в этом не разубедит.А можно узнать, чем колпачки для скрутки лучше клемм WAGO?
По электрике проект конечно замечательный:) Жаль только что провода там не соответствуют ему, а идут по ТУ самого низкого качества, где 2,5 на самом деле 1,8 по замерам.
На Плющихенском так. Не думаю, что одна и та же контора на другом массиве будет другие закупать кабеля.
На Плющихенском так. Не думаю, что одна и та же контора на другом массиве будет другие закупать кабеля.
То есть провод промаркирован (к примеру) ВВГнг 3*2,5 ,а по факту его сечение 1,8? или кабель noname?
OlegAtor1982
guru
это отдельная тема,причем очень спорная даже на специализированных форумах.
Поэтому сюда переносить эти дискуссии смысла нет.
Я высказал свое мнение,ваго только на свет,все остальное СИЗЫ.
Поэтому сюда переносить эти дискуссии смысла нет.
Я высказал свое мнение,ваго только на свет,все остальное СИЗЫ.
Провода промаркерованы.
К примеру, в магазине вы пробовали их смотреть, эти провода? Есть провода которые сделаны по ГОСТу, а есть провода, которые сделаны по ТУ. Так вот ТУ допускает отклонения от ГОСТа.
Те которые дешевое ТУ, там и сечение не соответствует 2,5. Но написано что 3*2,5.
А те, которые по ГОСТу, они уже ближе к 2,5, но тоже есть 2,4-2,3. Но и стоят уже дороже.
К примеру, в магазине вы пробовали их смотреть, эти провода? Есть провода которые сделаны по ГОСТу, а есть провода, которые сделаны по ТУ. Так вот ТУ допускает отклонения от ГОСТа.
Те которые дешевое ТУ, там и сечение не соответствует 2,5. Но написано что 3*2,5.
А те, которые по ГОСТу, они уже ближе к 2,5, но тоже есть 2,4-2,3. Но и стоят уже дороже.
bonanza
veteran
это отдельная тема,причем очень спорная даже на специализированных форумах.ну как хотите) я спорить не собиралась, хотела выслушать объективные причины. Если они так сложны и многогранны, то и вправду не стоит засорять "эфир"

Здравствуйте. Нужно сделать полностью всю электрику в новостройке. Пишите в личку примерную стоимость, если интересно. Квартира 36 кв.
.........где 2,5 на самом деле 1,8 по замерам.Сечение 2,5 мм2, это и есть 1,8 мм в диаметре, что не так?
да, сечение - это площадь сечения pr*r (пи эр в квадрате) или pd*d/ 4 (пи дэ в квадрате деленное на 4) встречал электриков которые этого не знают....
Тут еще многое зависит от завода производителя
Ну Америку вы конечно не открыли, а вот для справки людям можно сказать Что ПВ1 - это провод в ПВХ изоляции моножильный, медный , а вот АПВ - это уже алюминевый (1 курс ПТУ), ПВ3- гибкий медный, есть еще ПВ2, ПВ5 и тд и отличаются гибкостью , если что извиняйте 

вот такая проблема.... купил двухклавишный выключатель и не знаю как прально 3 провода кинуть и как провод крепиться ? (раньше болтиками зажималось)
pavlik_NSK
veteran

Это называется пружинная клемма. Нажимаете на этот рычажок до упора и в дырочку (одну из двух под клавишей) засовываете провод. Когда рычажок отпустите пружина зажмет в клемме провод. Главное достаточную длину провода зачистить. И не забудьте такие клеммы только для одножильного провода. Если у вас многожилка типа ПВС или ШВВП, то нужно наконечник одеть или залудить провод.
А по поводу входа и выходов еще проще - там же все нарисовано! Это не выключатель, а ПЕРЕключатель. Входы по стрелкам смотрите их два. Выходы смотрите по стрелкам выходов. Те выходы которые штриховкой соединены со входами это и есть нужные вам. Это нормально разомкнутые контакты, которые замыкаются на входы при переключении кнопки.
Теперь о том как его подключить:
Два входа соедините вместе и к фазе их оба. А с выходов (те которые штриховкой) берите два провода на светильник.
умник1771
activist
а можно подробней....я воткнул фазу в 6 и один провод в 2 - все работает ! а с вторым проводом не получается... куда его ? пробовал сделать перемычку с 6 на 1 (подал фазу) второй провод втыкаю в 4 - не фурычит ....что не так ?
ну т.е. я схему так понял - фаза втыкаем в 1 и 6 , а провода с потребителей в 4 и 2, ну чего не получается ....с 4 не идет, п0чему и спрашиваю, выключатель новый, чо не так ?
ну т.е. я схему так понял - фаза втыкаем в 1 и 6 , а провода с потребителей в 4 и 2, ну чего не получается ....с 4 не идет, п0чему и спрашиваю, выключатель новый, чо не так ?
pavlik_NSK
veteran
Думаю контакта просто нет где то. все так должно работать.
умник1771
activist
разобрался !......всё фурычит, всё работает... как бы раньше проблем не возникало, но тут столкнулся с "новым выключателем" у которого цена не располагает к эксперементам, , вроде принцип понятен, но лучше спросить у Форумчан )))) а то чонить отломаю )))
всем спасибо !!
всем спасибо !!
Камрад,извини что в твоем топе,но заводить второй с практически аналогичным нащванием,согласись некомильфо.
Проблема такова,топил меня соседушко неоднократно,в результате пропал свет в куне-туалет-ванне(панельная трешка9 этажка,трамвай).Проводка выполнена алюминием в 72 годе.При раскорвыривании распаечнойткоробки от раствора оказалось,что из трех скруток две рассыпались.Длины оставшихся концов с запасом,проблема прозвонить и правильно восстановить.
Хотелочь бы узнать у спецов,сколько такая работа стоит,и кто может сделать за эти деньги.
Проблема такова,топил меня соседушко неоднократно,в результате пропал свет в куне-туалет-ванне(панельная трешка9 этажка,трамвай).Проводка выполнена алюминием в 72 годе.При раскорвыривании распаечнойткоробки от раствора оказалось,что из трех скруток две рассыпались.Длины оставшихся концов с запасом,проблема прозвонить и правильно восстановить.
Хотелочь бы узнать у спецов,сколько такая работа стоит,и кто может сделать за эти деньги.
Денис_Строитель
member
Смотреть нужно так и не скажешь, думаю не больше 2-2,5тр
не мешало бы на всякий случай после душа мегернуть, кто его знает как там после такого
2-2,5 что то дороговато однако за прозвонку распредки и ее сборку
2-2,5 что то дороговато однако за прозвонку распредки и ее сборку
подскажите пожалуйста есть ли у нас электрики которые смогут поосмотреть стиральную машинку раз сигнализацию в машине два и по поводке в квартире ? можно все по отдельности уену и предложения пишите пожалуйста в личку буду благодарна и признательна
Требуется электрик, для заключения договора с организацией.Требование к кандидатам: наличие действительных документов(удостоверение электрика, св-во о допуске работы с ртутносодержащими приборами (люминисцентные лампы и т.п.). Ответы и вопросы писать в личку.
нет удостоверения электрика
, есть диплом об образовании , удостоверение по электробезопасности с результатами проверки знаний и присвоения группы, а также свидетельство на право проведения спец работ!
расскажите про свидетельство о допуске с ртутсодержащими приборами?
а то пока только с журналом их отходов приходилось сталкиваться


расскажите про свидетельство о допуске с ртутсодержащими приборами?
а то пока только с журналом их отходов приходилось сталкиваться
Доброго дня, на основании законодательства об охране окружающей среды и т.п. охране недр, воздуха и т.д. с 01.01.2016 года у электрика. который производит обслуживание эл.светильников с люминисцентными лампами, они же (ртуьсодержащие), департамент природных ресурсов и охраны окружающей среды НСО, требует наличие допуска у электрика к работе с ртутьсодержащими приборами. Вот и получается, что если у Вас есть офис где используются люминисцентные лампы - у электрика должен быть такой допуск или соответственно будет выявлено нарушение((((((
ТОП 5
2
4