На информационном ресурсе применяются cookie-файлы. Оставаясь на сайте, вы подтверждаете свое согласие на их использование.
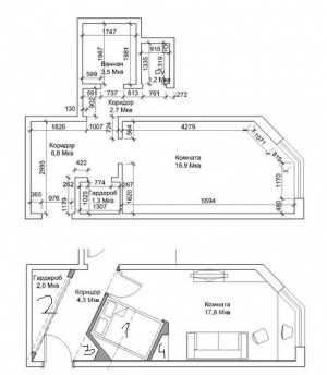
Я в свое время долго мучал себя мыслями как бы выжать максимум из 38 кв.м горской однешки:)
Придумал лишь одну идею, от нее пошла вторая волна идей, в итоге куча плюсов после реализации:)
Идея- "отрезать косой линией где нибудь отдельное спальное место". Плюсами явились сопутсвующие 2 шкафчика и отдельный гардероб.
Может кому нить пригодится...
Придумал лишь одну идею, от нее пошла вторая волна идей, в итоге куча плюсов после реализации:)
Идея- "отрезать косой линией где нибудь отдельное спальное место". Плюсами явились сопутсвующие 2 шкафчика и отдельный гардероб.
Может кому нить пригодится...
3 встроенные шкаф под обувь, + под всякие мелкие коробки которые можно закинуть повыше...4 полки под книги.
Аттачем несколько фоток после реализации
Аттачем несколько фоток после реализации
Еще вот такая вот кастомизация ванна-туалет ( в продолжении выбранных направлений кладки кафеля на полу). + Нашел таки необычный унитаз который тоже вписался в заданное направление.
P.s благодаря такому переносу двери, в малом коридоре(соединяющем кухню и комнату я еще по косой отрезал в углу шкаф кладовку)
P.s благодаря такому переносу двери, в малом коридоре(соединяющем кухню и комнату я еще по косой отрезал в углу шкаф кладовку)
LeRain
junior
С возвращениемвсе четко просчитали по метражу квартиры! куда чего поставить, где розетки сделать и т.д. И самое важное как лучше отделить зоны!Конечно, как будут результаты - фоточки ждём
А что прораб будет вам именно делать?
решили ставить угловую кухню с барной стойкой и от барной стойки через 80 см ставить стену из гипсокартона с окошечками



На данном этапе остается только ждать! очень надеюсь въехать в квартиру числа 20 сентября!
Угадали, свою квартирку действительно в Сибири брал..Зачем тратить сотни рублей, если все эти журналы есть в интернете? "Идеи для вашего дома", "Салон", "Лучшие интерьеры".-однозначно есть.Теперь - с нетерпением жду когда достроят..
А просто для себя - рекомендую вам полистать журналы с интерьерами (хоть свежие, хоть - прошлогодние). Из них можно интересных идей подчерпнуть - очень часто встречаются великолепные варианты которые вам захочется у себя реализовать!!
Не пожалейте на них несколько сотен рублей - не пожалеете!!
А мы вот решили кухню отгородить стеной из гипсокартона, незнаю, что из этого получиться, но ощущать присутсвие кухни в комнате где спишь как-то нехочется
TaNuSHkInA
veteran
Так то вроде, что кухонная зона будет у вас отделена это не плохо...но еще и кухня сама с барной стойкой и за ней стена.....просто как всё это будет смотреться
ужасает сейчас замена труб и батарей - что с ними так всё плохо? Видимо в навостройках ставят лишь бы лишь бы?
Будем ждать фотоотчёта по ремонту

ужасает сейчас замена труб и батарей - что с ними так всё плохо? Видимо в навостройках ставят лишь бы лишь бы?
Будем ждать фотоотчёта по ремонту

Сейчас читают
Сообщество виртуальных танкистов Автофорума НГС.
246517
1000
Грибы 2013г.
869846
1000
Цифровое телевидение в Новосибирске. (часть 3)
498624
1000
Мы барную стойку не планируем, хотим, чтобы была рабочая зона, эл. плита, холодильник и небольшой стол, в общем все как в обычной кухне.
Именно потому и предлагаю потратить небольшую денежку на "бумажные" версии журналов, на их сайтах - одни обрезки...
В одном номере "Идеи Вашего дома" вариантов (картинок) больше чем на всем сайте..
На "Лучших Интерьерах" - доступны картинки размером с почтовую марку, хочешь больше - регистрируйтесь..
А особенно - если вы делаете ремонт на 100 и более тыс., то уж точно можете себе позволить журнал за 100р.
В одном номере "Идеи Вашего дома" вариантов (картинок) больше чем на всем сайте..
На "Лучших Интерьерах" - доступны картинки размером с почтовую марку, хочешь больше - регистрируйтесь..

А особенно - если вы делаете ремонт на 100 и более тыс., то уж точно можете себе позволить журнал за 100р.

Хмм..на 100 тыс с нуля? тогда и картинок не надо..там уже на что хватит). А в чем проблема зарегистрироваться? Одна моя подруга пачками скупала идеи для вашего дома в свое время..не помогло
. Ремонт получился без идеи.

Хмм..на 100 тыс с нуля? тогда и картинок не надо..там уже на что хватит). А в чем проблема зарегистрироваться? Одна моя подруга пачками скупала идеи для вашего дома в свое время..не помогло+1000! Вот в этом и есть ИСТИНА! Полистать журналы, надергать картинки и фрагменты не означает СДЕЛАТЬ ДИЗАЙН + комфорт+дешево!. Ремонт получился без идеи.
TaNuSHkInA
veteran
На данном этапе остается только ждать! очень надеюсь въехать в квартиру числа 20 сентября!Привет. Что -то пропали


Adelvase
activist
Подскажите пожалуйста, где скачать эт чудо-программу, которая выше упомянута? Какое полное название?
TaNuSHkInA
veteran
По ссылке заглянула - хм, ТС так и не появилась...жаль, очень хотелось посмотреть как у нее получились вопрощённые идеи 

ТОП 5
1
2
3